
S Immobilienpartner GmbH
Frau Sylvana Maybeck
004 ···
Nr. anzeigenPreise & Kosten
Provision für Käufer
3,57 % inkl. MwSt.
Lage
Die Immobilie liegt in einer familienfreundlichen Umgebung in Leverkusen Steinbüchel, die zahlreiche Annehmlichkeiten bietet. In unmittelbarer Nähe befinden sich mehrere Schulen, darunter die Katholische Grundschule In der Wasserkuhl und die Grundschule Burg Berge, die beide in wenigen Minuten erreichbar sind. Für die...
Das Haus
Kategorie
Einfamilienhaus
Baujahr
1955
Bezug
sofort
Energie & Heizung
Warum sehe ich diese Anzeige? – Du siehst diese Anzeige basierend auf Ihrer Navigation auf unserer Website und den Suchkriterien, die du verwendet hast.
Energieausweistyp
Bedarfsausweis
Gebäudetyp
Wohngebäude
Baujahr laut Energieausweis
1955
Wesentliche Energieträger
OEL
Gültigkeit
bis 20.05.2035
Effizienzklasse
D
Endenergiebedarf
126,70 kWh/(m²·a)
Weitere Energiedaten
Haustyp
Massivhaus
Energieträger
Öl
Details
Objektbeschreibung
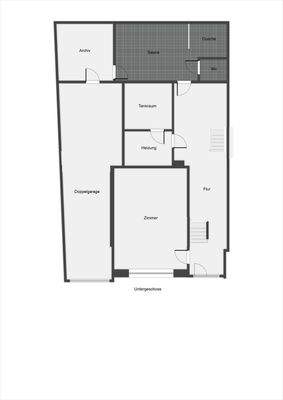
Angrenzend an das Naturschutzgebiet "Gronenborner Fischteiche" bieten wir Ihnen ein freistehendes Einfamilienhaus auf einem 822 m² großen Grundstück zum Kauf an. Das ursprünglich 1955 erbaute Einfamilienhaus wurde in dem Zeitraum 2009 bis 2010 um einen Anbau erweitert und teilsaniert. Insgesamt verfügt das Haus heute über 6...
Ausstattung
Technische Eckdaten:
- Öl-Heizung aus 2010 inkl. Warmwasservorgung über Solarthermie
- das Dach wurde inkl. Dämmung 2010 saniert
- Wärmedämmung der Fassade 2010
- überwiegend Kunstofffenster mit 3-Fach-Verglasung aus 2010
Der Clou: Am hinteren Grundstücksende gibt es eine "Baulücke". Hier könnten Sie z.B...
Weitere Informationen
Stichworte
Nutzfläche: 71,23 m², Bundesland: Nordrhein-Westfalen, 3 Etagen
Anbieter der Immobilie
Online-ID: 2m82558
Referenznummer: 71968
Finde Angebote wie dieses
Hier geht es zu unserem Impressum, den Allgemeinen Geschäftsbedingungen, den Hinweisen zum Datenschutz und nutzungsbasierter Online-Werbung.