
Crozilla.com
Luva Real Estate
+38 ···
Nr. anzeigenPreise & Kosten
Provision für Käufer
Bitte beachte, das Angebot kann bei Vertragsabschluss die Zahlung einer Provision beinhalten. Weitere Informationen erhältst Du vom Anbieter.
Die Wohnung
Wohnungslage
1. Geschoss
Details
Objektbeschreibung
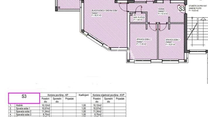
Zum Verkauf steht eine moderne und hochwertig gebaute Wohnung, gelegen im 1. Stock eines kleineren Wohngebäudes in Gornji Stupnik, mit einer Gesamtfläche von 94,13 m².
Raumaufteilung der Wohnung:
- drei Schlafzimmer
- Küche
- Flur
- Wohn- und Esszimmer mit Zugang zur Terrasse
- überdachter...
Weitere Informationen
Stichworte
Anzahl der Schlafzimmer: 4, Anzahl der Badezimmer: 2
Anbieter der Immobilie
Crozilla.com
Nova cesta 60, 10000 ZAGREB
Online-ID: 2m8585d
Referenznummer: 18630995_1
Finde Angebote wie dieses
Hier geht es zu unserem Impressum, den Allgemeinen Geschäftsbedingungen, den Hinweisen zum Datenschutz und nutzungsbasierter Online-Werbung.