
s REAL Immobilienvermittlung GmbH
Frau Raveena Janagal
+43 ···
Nr. anzeigenPreise & Kosten
Provision für Käufer
provisionsfrei
Die Wohnung
Wohnungslage
1. Geschoss
Bezug
sofort
Wohnanlage
Energie & Heizung
Warum sehe ich diese Anzeige? – Du siehst diese Anzeige basierend auf Ihrer Navigation auf unserer Website und den Suchkriterien, die du verwendet hast.
Heizwärmebedarf (HWB)
45,00 kWh/(m²·a)
Gesamtenergieeffizienz (fGEE)
1,01
Weitere Energiedaten
Energieträger
Gas
Heizungsart
Zentralheizung
Details
Objektbeschreibung
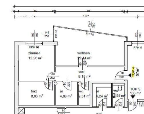
Diese gut geschnittene 2-Zimmer-Wohnung im 1. Obergeschoss bietet 59,71 m² und eignet sich perfekt für junge Familien oder als attraktive Kapitalanlage. Die Wohnung ist barrierefrei und bietet eine Wohnküche, die sich durch eine praktische Raumaufteilung und genügend Platz für eine Ess- und Kochbereich auszeichnet. Die...
Weitere Informationen
Stichworte
Bundesland: Salzburg, 4 Etagen, Wohnungsnr.: 4
Anbieter der Immobilie
s REAL Immobilienvermittlung GmbH
Landstraßer Hauptstraße 60, 1030 WIEN
Online-ID: 2m86a5b
Referenznummer: OBGC20251112171703265264e0ec95e
Finde Angebote wie dieses
Günstige Immobilienfinanzierung einfach online berechnen
Persönliches Angebot berechnenWarum sehe ich diese Werbung? – Du siehst diese Werbung basierend auf Deiner Navigation auf unserer Website und der von Dir verwendeten Suchkriterien.
Diese Werbung wird bezahlt von durchblicker
Werbung melden
Hier geht es zu unserem Impressum, den Allgemeinen Geschäftsbedingungen, den Hinweisen zum Datenschutz und nutzungsbasierter Online-Werbung.