

BS Immobilien Kontor Büürma GmbH
Herr Dennis Büürma
049 ···
Nr. anzeigenPreise & Kosten
Provision für Käufer
Die Maklerprovision beträgt für den Käufer 3,57% vom Kaufpreis inkl. ges. MwSt..
Lage
26871 Papenburg OT. Untenende (Gute ÖPNV, Einkaufsmöglichkeiten, Ärzte, Bäcker, Apotheken, Krankenhaus, Schulen, Schwimmbad etc. in der Nähe, ausgewogene Infrastruktur, Nähe zur Meyer Werft)
Die Wohnung
Bezug
Fertigstellung 2027
Wohnanlage
Energie & Heizung
Warum sehe ich diese Anzeige? – Du siehst diese Anzeige basierend auf Ihrer Navigation auf unserer Website und den Suchkriterien, die du verwendet hast.
Energieausweistyp
Bedarfsausweis
Gebäudetyp
Wohngebäude
Baujahr laut Energieausweis
2027
Wesentliche Energieträger
LUFTWP
Gültigkeit
bis 17.12.2035
Effizienzklasse
A+
Endenergiebedarf
14,00 kWh/(m²·a)
Weitere Energiedaten
Heizungsart
Fußbodenheizung, Luft-/Wasser-Wärmepumpe
Details
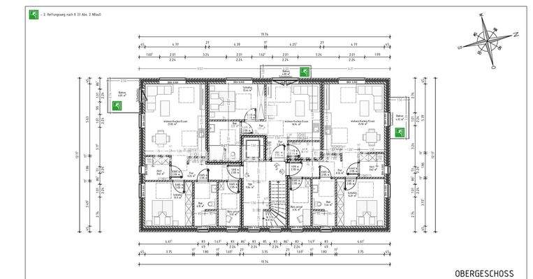
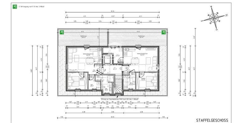
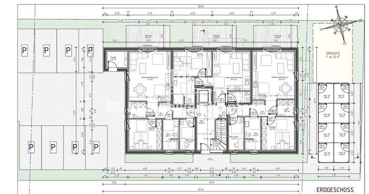
Objektbeschreibung
Diese hochwertige Neubau-Erdgeschosswohnung wird Sie begeistern. In zentraler Wohnlage von Papenburg entsteht ein modernes Wohngebäude mit ansprechender Architektur und insgesamt acht barrierefreien Eigentumswohnungen für Jung und Alt. Die Fertigstellung ist für das Jahr 2027 geplant, die Ausführung erfolgt schlüsselfertig...
Ausstattung
Aufstellung der Besonderheiten:
-Schlüsselfertige Herstellung 2027
-Dreifachverglaste Fenster mit elektrischen Jalousien
-Fußbodenheizung komplett
-Feinsteinfliesen oder Vinyl-Designbelag gem. Baubeschreibung
-PKW-Einstellplatz
-In allem Räumen SAT u. Lan-Anschluss
-Weiße, hochwertige...
Weitere Informationen
Sonstiges
Grundstück: Gem. Eigentum
Gebäude: EG: Flur/Diele, Duschbad mit WC, Schlafzimmer, Büro, offener Wohn-/Essbereich mit Küchenanschlüssen und Zugang zur Terrasse, Abstellraum mit Anschluss für WA/TR,
Gesamt: Wohnfläche ca. 68qm
Stichworte
Anzahl der Schlafzimmer: 1, Anzahl der Badezimmer: 1...
Anbieter der Immobilie
BS Immobilien Kontor Büürma GmbH
Faldernstraße 29, 26725 Emden

Online-ID: 2m86d5r
Referenznummer: E19B57003
Finde Angebote wie dieses
Hier geht es zu unserem Impressum, den Allgemeinen Geschäftsbedingungen, den Hinweisen zum Datenschutz und nutzungsbasierter Online-Werbung.