
Dresdner Grund Eisinger oHG
Herr Ralf Eisinger
086 ···
Nr. anzeigenPreise & Kosten
Kaution
3 Monatsmieten
Warum sehe ich diese Anzeige? – Du siehst diese Anzeige basierend auf Ihrer Navigation auf unserer Website und den Suchkriterien, die du verwendet hast.
Lage
Das Anwesen Ludwigstraße 26 befindet sich in der Traunsteiner Innenstadt. Rückseitig blickt man auf die Justizgebäude und deren Grünflächen. Unweit entfernt sind das Finanzamt, der Bahnhof und der Stadtpark.
Traunstein ist Mittelpunkt der Voralpenregion zwischen München und Salzburg und hat ein Ausstrahlung über die...
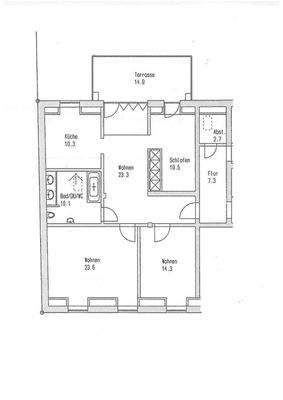
Die Wohnung
Wohnungslage
4. Geschoss
Wohnanlage
Energie & Heizung
Warum sehe ich diese Anzeige? – Du siehst diese Anzeige basierend auf Ihrer Navigation auf unserer Website und den Suchkriterien, die du verwendet hast.
Wärme
Energieausweistyp
Verbrauchsausweis
Gebäudetyp
Nicht-Wohngebäude
Baujahr laut Energieausweis
1960
Wesentliche Energieträger
Gas
Gültigkeit
15.12.2015 bis 14.12.2025
Endenergieverbrauch (Wärme)
129,30 kWh/(m²·a) - Warmwasser enthalten
Weitere Energiedaten
Energieträger
Gas
Heizungsart
Zentralheizung
Details
Objektbeschreibung
In dem modernen und sanierten Wohn- u. Geschäftshaus wird frei eine attraktive Dachgeschosswohnung mit Parkettböden und Marmorbad.
PKW-Abstellmöglichkeiten können wir in der Nähe (z.B. Pensionatstraße oder Bahnhofstraße) für monatlich € 70 + MwSt anbieten.
Weitere Informationen
Sonstiges
Irrtum und Zwischenvermietung vorbehalten.
Besichtigungstermine
nach Vereinbarung
Anbieter der Immobilie
Dresdner Grund Eisinger oHG
Altenzeller Str. 50, 01069 Dresden
Online-ID: 2m8725n
Finde Angebote wie dieses
Hier geht es zu unserem Impressum, den Allgemeinen Geschäftsbedingungen, den Hinweisen zum Datenschutz und nutzungsbasierter Online-Werbung.