
Anobis Immobilien GmbH
Frau Alexandra Wagner, MSc.
+43 ···
Nr. anzeigenPreise & Kosten
Kaution
3.300,00 €
Provision für Mieter
3 Bruttomonatsmieten zzgl. 20% USt.
Warum sehe ich diese Anzeige? – Du siehst diese Anzeige basierend auf Ihrer Navigation auf unserer Website und den Suchkriterien, die du verwendet hast.
Lage
U6-Station Alterlaa, Abfahrt Südosttangente bzw A2
Büro-/Praxisfläche
Kategorie
Bürogebäude
Bezug
sofort
Geschoss
2. Geschoss
Energie & Heizung
Warum sehe ich diese Anzeige? – Du siehst diese Anzeige basierend auf Ihrer Navigation auf unserer Website und den Suchkriterien, die du verwendet hast.
Heizwärmebedarf (HWB)
141,13 kWh/(m²·a)
Gesamtenergieeffizienz (fGEE)
1,09
Weitere Energiedaten
Energieträger
Fernwärme
Heizungsart
Zentralheizung
Details
Objektbeschreibung
Effizient, modern & flexibel: 1-Zimmer-Büro mieten und Allgemeinräume mitnutzen
Das moderne Bürohaus befindet sich zentral gelegen im Süden von Wien umweit des Kaufparks Alt Erlaa und bietet somit eine ausgezeichnete Nahversorgung (Billa, Apotheke, Bank, ect.), sowie eine optimale Anbindung an das öffentliche...
Preisinformation
1 Stellplatz
Nettokaltmiete: 331,79 EUR
Weitere Informationen
Stichworte
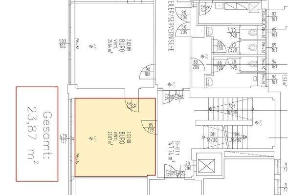
Stellplatz vorhanden, Rolladen, Nutzfläche: 23,87 m², Anzahl der separaten WCs: 4, Bundesland: Wien, modernisiert: 2025, modernisiert
Sonstiges: Kabelkanäle
Anbieter der Immobilie
Anobis Immobilien GmbH
Biberstraße 3, Top 4A, 1010 WIEN
Online-ID: 2m8855a
Referenznummer: OBGC202511121007158967d2fc20612
Finde Angebote wie dieses
Hier geht es zu unserem Impressum, den Allgemeinen Geschäftsbedingungen, den Hinweisen zum Datenschutz und nutzungsbasierter Online-Werbung.