
Crozilla.com
Opereta
+38 ···
Nr. anzeigenPreise & Kosten
Provision für Käufer
Bitte beachte, das Angebot kann bei Vertragsabschluss die Zahlung einer Provision beinhalten. Weitere Informationen erhältst Du vom Anbieter.
Wohnanlage
Details
Objektbeschreibung
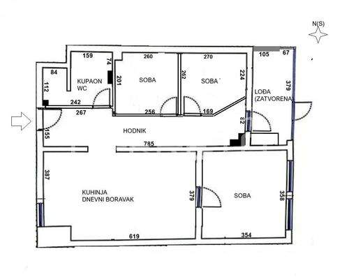
PRODAJA, STAN, ZAGREB, GAJNICE. Kompletno renoviran stan u prizemlju zgrade sa 6 katova, povrsine 67m2, koji se sastoji od ulaznog hodnika, kuhinje s blagovanjem, tri sobe, kupaonice s wc-om i zatvorene lode od 6m2 iz koje se izlazi u zajednicki vrt. U vl.listu je navedena povrsina od 55,4m2 (legalizirano!) Sve sobe imaju...
Weitere Informationen
Stichworte
Anzahl der Schlafzimmer: 3, Anzahl der Badezimmer: 1
Anbieter der Immobilie
Crozilla.com
Nova cesta 60, 10000 ZAGREB
Online-ID: 2m88r5t
Referenznummer: 18875865_1
Finde Angebote wie dieses
Hier geht es zu unserem Impressum, den Allgemeinen Geschäftsbedingungen, den Hinweisen zum Datenschutz und nutzungsbasierter Online-Werbung.