

immohaus immobilien
Herr Sebastian Wolf
091 ···
Nr. anzeigenPreise & Kosten
Kaution
1.500,00 €
Warum sehe ich diese Anzeige? – Du siehst diese Anzeige basierend auf Ihrer Navigation auf unserer Website und den Suchkriterien, die du verwendet hast.
Lage
Es erwartet Sie eine tolle Infrastruktur
Egal ob REWE, ALDI, LIDL, EDEKA, Bäcker, Metzger und das Einkaufszentrum Rothmühl-Passagen, für den Einkauf des täglichen Lebens ist ausreichend vorgesorgt.
Bildung wird in Roth groß geschrieben. Neben Grund- und Hauptschule sind Realschule und Gymnasium, sowie Berufsschule...
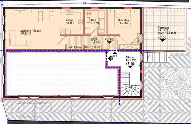
Die Wohnung
Wohnungslage
1. Geschoss
Bezug
01.02.2026
Energie & Heizung
Warum sehe ich diese Anzeige? – Du siehst diese Anzeige basierend auf Ihrer Navigation auf unserer Website und den Suchkriterien, die du verwendet hast.
Weitere Energiedaten
Energieträger
Gas
Heizungsart
Zentralheizung
Details
Objektbeschreibung
Die in der Innenstadt gelegene Wohnung befindet sich im 1. Stock eines frisch renovierten Hauses in Roth. Über das Treppenhaus gelangen Sie in die moderne 2-Zimmer Wohnung mit ca. 83 qm. Von der Diele aus kommen Sie in alle Räume wie das Schlafzimmer, das Badezimmer und auch in den offenen Wohn- und Essbereich. Über das Wohn-...
Weitere Informationen
Stichworte
Anzahl der Schlafzimmer: 1, Anzahl der Badezimmer: 1, Anzahl Balkone: 1, Balkon-Terrassen-Fläche: 23,00 m², Stadtzentrumslage
Sonstiges: frei werdend
Anbieter der Immobilie
immohaus immobilien
Hauptstr. 15, 91154 Roth

Online-ID: 2m88v5q
Referenznummer: 5811#PxsKuw
Finde Angebote wie dieses
Hier geht es zu unserem Impressum, den Allgemeinen Geschäftsbedingungen, den Hinweisen zum Datenschutz und nutzungsbasierter Online-Werbung.