

H-I-mmobilien
Frau Heike Illinger
035 ···
Nr. anzeigenPreise & Kosten
Provision für Käufer
4,0% vom Kaufpreis, inkl. 19% Mwst.
Lage
Sehr gute Anbindung an die Straßennetze, nördlich von Mühlberg befindet sich die Landesstraße L 66 nach Bad Liebenwerda. Die L 67 tangiert die Stadt im Osten und verbindet sie mit mehreren Ortsteilen. Mühlberg ist über die Bundesstraße 182 zu erreichen.
Die Landschaft wird durch die Elbe - als großer bedeutender...
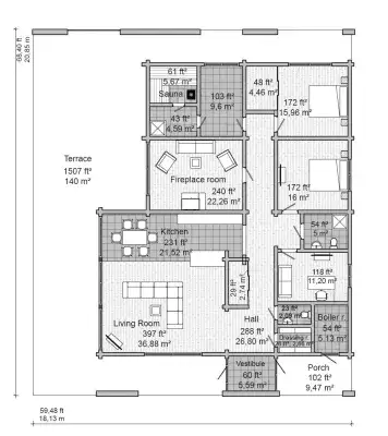
Das Haus
Kategorie
Einfamilienhaus
Geschosse
1 Geschoss
Baujahr
2026
Bezug
2026
Derzeitige Nutzung
frei
Energie & Heizung
Warum sehe ich diese Anzeige? – Du siehst diese Anzeige basierend auf Ihrer Navigation auf unserer Website und den Suchkriterien, die du verwendet hast.
Weitere Energiedaten
Haustyp
Fertighaus, Passivhaus
Energieträger
Elektro
Heizungsart
Luft-/Wasser-Wärmepumpe
Details
Objektbeschreibung
82€/m² Fertighaus-Bausatz aus ökologischem Brettschichtholz
Auch moderne Doppelhaus-Grundrisse können wir Ihnen gern empfehlen, z.B. Hanse-Haus.
Ein Grundstück für alle Fälle. Ob als Hauptwohnsitz (gern mit den Eltern / Freunden nebenan), Ferienimmobilie, Anlagenimmobilie, Gewerbe, ... einerlei. Setzen Sie hier Ihre...
Weitere Informationen
Sonstiges
Zwei nebeneinander liegende, erschlossene Baugrundstücke (2 x 1.300qm oder 1 x 2.685qm) werden hier verkauft. Die Anliegerstraße mit Wendehammer ist auch schon fertiggestellt. Alles neu. Die zuständige Baubehörde ist umfangreich aufgrund der bereits eingereichten Bauanträge informiert. Keine lästigen...
Anbieter der Immobilie
H-I-mmobilien
Am Alten Gut 6, 04931 Mühlberg/Elbe

Online-ID: 2m8ak5z
Referenznummer: 01514
Finde Angebote wie dieses
Hier geht es zu unserem Impressum, den Allgemeinen Geschäftsbedingungen, den Hinweisen zum Datenschutz und nutzungsbasierter Online-Werbung.