

KLASAN & Partner Immobilien GmbH & Co KG
Frau Katharina Klasan
004 ···
Nr. anzeigenPreise & Kosten
Provision für Käufer
Bitte beachte, das Angebot kann bei Vertragsabschluss die Zahlung einer Provision beinhalten. Weitere Informationen erhältst Du vom Anbieter.
Lage
Die Immobilie in der Gottenweg liegt in einer attraktiven und gefragten Wohngegend des 22. Wiener Gemeindebezirks, unweit der UNO City und der Donau. Die Lage zeichnet sich durch eine ausgezeichnete Kombination aus urbaner Infrastruktur, ruhiger Wohnatmosphäre und internationalem Flair aus.
Die Verkehrsanbindung ist...
Die Wohnung
Wohnungslage
Erdgeschoss
Wohnanlage
Energie & Heizung
Warum sehe ich diese Anzeige? – Du siehst diese Anzeige basierend auf Ihrer Navigation auf unserer Website und den Suchkriterien, die du verwendet hast.
Heizwärmebedarf (HWB)
34,30 kWh/(m²·a)
Gesamtenergieeffizienz (fGEE)
0,64
Weitere Energiedaten
Heizungsart
Fußbodenheizung
Details
Objektbeschreibung
Modernes Wohnen am Kaiserwasser - 84 m² Ruheoase mit Terrasse & Klima
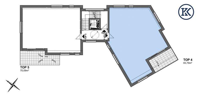
Bitte beachten Sie der Grundriss ist veränderbar!!!
Dieses Zuhause kombiniert modernes Design, höchste Energieeffizienz und eine traumhafte Lage - eine seltene Gelegenheit, die Sie nicht verpassen sollten.
Die Wohnung liegt im 1...
Ausstattung
Modern Living by the Kaiserwasser - 84 m² Oasis of Calm with Terrace & Air Conditioning
Please note: the floor plan is adaptable!!!
This home combines modern design, top energy efficiency, and a stunning location - a rare opportunity you won't want to miss.
The apartment is located on the 1st floor of...
Preisinformation
1 Stellplatz, Kaufpreis: 13.000,00 EUR
Weitere Informationen
Sonstiges
Immobilienbewertung und Verkaufsangebot
Möchten Sie den aktuellen Marktwert Ihrer Immobilie ermitteln oder sind Sie auf der Suche nach einer passenden Immobilie? Wir bieten Ihnen eine unverbindliche und detaillierte Wertermittlung an und präsentieren Ihnen gerne diese Immobilie als potenzielles...
Anbieter der Immobilie
KLASAN & Partner Immobilien GmbH & Co KG
Groß-Enzersdorfer Str. 52/1/01, 1220 WIEN

Online-ID: 2m8d45h
Referenznummer: 25/12626
Finde Angebote wie dieses
Günstige Immobilienfinanzierung einfach online berechnen
Persönliches Angebot berechnenWarum sehe ich diese Werbung? – Du siehst diese Werbung basierend auf Deiner Navigation auf unserer Website und der von Dir verwendeten Suchkriterien.
Diese Werbung wird bezahlt von durchblicker
Werbung melden
Hier geht es zu unserem Impressum, den Allgemeinen Geschäftsbedingungen, den Hinweisen zum Datenschutz und nutzungsbasierter Online-Werbung.