
HB-HB-Immobilien
Frau Rebekka Marie Karth
004 ···
Nr. anzeigenPreise & Kosten
Provision für Käufer
3,57 % (inkl. 19 % MwSt.) vom beurkundeten Kaufpreis, jeweils vom Käufer und Verkäufer
Lage
Das hier angebotene Reihenhaus befindet sich in einer ruhigen und gepflegten Wohngegend im Stadtteil Schwachhausen/Radio-Bremen.
Einkaufsmöglichkeiten für den täglichen Bedarf, wie Supermärkte, Bäckereien und Apotheken, befinden sich in unmittelbarer Nähe. Ärzte, Schulen und Kindergärten sind ebenfalls schnell...
Das Haus
Kategorie
Reihenmittelhaus
Baujahr
1965
Bezug
nach Vereinbarung
Energie & Heizung
Warum sehe ich diese Anzeige? – Du siehst diese Anzeige basierend auf Ihrer Navigation auf unserer Website und den Suchkriterien, die du verwendet hast.
Energieausweistyp
Bedarfsausweis
Gebäudetyp
Wohngebäude
Baujahr laut Energieausweis
2000
Wesentliche Energieträger
ERDGAS_LEICHT
Gültigkeit
bis 18.12.2035
Effizienzklasse
G
Endenergiebedarf
209,30 kWh/(m²·a)
Weitere Energiedaten
Energieträger
Gas
Heizungsart
Zentralheizung
Details
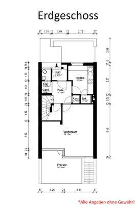
Objektbeschreibung
Das Reihenmittelhaus wurde im Jahr 1965 errichtet und im Jahr 1993 saniert. Es verfügt über eine vorteilhafte Raumaufteilung. Viele Fenster des Hauses sind mit Rollläden ausgestattet. Die Markise auf der Terrasse ist elektrisch bedienbar.
Über den großzügigen Eingangsflur gelangt man in das Wohn- und Esszimmer, welches...
Ausstattung
Exemplarisch möchten wir auf folgende Ausstattungsdetails hinweisen:
-Großes Wohnzimmer mit Essecke
-Vollbad in der ersten Etage
-3 Schlafzimmer
-1 Sonnenterrasse und 2 Balkone
-Nach Süden ausgerichteter Garten
-Großzügiger Vollkeller
-Ausbaureserve im Dachgeschoss
Weitere Informationen
Sonstiges
Die Grundsteuer p. a. beträgt ca. 396,75 €.
Unsere Objektangaben basieren auf den uns erteilten Informationen. Eine Haftung für die Richtigkeit und Vollständigkeit können wir deshalb nicht übernehmen.
Stichworte
Nutzfläche: 55,00 m², Anzahl der Schlafzimmer: 3, Anzahl der Badezimmer: 1, Anzahl...
Anbieter der Immobilie
HB-HB-Immobilien
Schwachhauser Heerstr. 54A, 28209 Bremen
Online-ID: 2m8el5t
Referenznummer: RK-25-10-0000321
Finde Angebote wie dieses
Hier geht es zu unserem Impressum, den Allgemeinen Geschäftsbedingungen, den Hinweisen zum Datenschutz und nutzungsbasierter Online-Werbung.