
Hofmann Immobilien GmbH
Herr Hofmann
091 ···
Nr. anzeigenPreise & Kosten
Kaution
2 Monatsmieten
Warum sehe ich diese Anzeige? – Du siehst diese Anzeige basierend auf Ihrer Navigation auf unserer Website und den Suchkriterien, die du verwendet hast.
Lage
Die 3-Zimmer-Wohnung liegt in hervorragender, ruhiger Lage von Igelsdorf. Die Lage im Grünen ist ein beliebtes Einzugsgebiet für die Städte Erlangen und Forchheim. Nach Erlangen sind es ca. 10 km. Die Stadt Forchheim ist ca. 9 km entfernt
Die Wohnung
Bezug
kurzfristig möglich, nach Vereinbarung
Wohnanlage
Energie & Heizung
Warum sehe ich diese Anzeige? – Du siehst diese Anzeige basierend auf Ihrer Navigation auf unserer Website und den Suchkriterien, die du verwendet hast.
Energieausweistyp
Bedarfsausweis
Gebäudetyp
Wohngebäude
Baujahr laut Energieausweis
1971
Wesentliche Energieträger
Öl
Gültigkeit
12.09.2025 bis 12.09.2035
Effizienzklasse
F
Endenergiebedarf
179,80 kWh/(m²·a)
Details
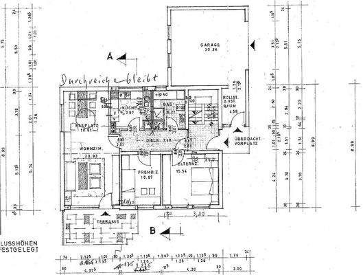
Objektbeschreibung
Die 3-Zimmer-Wohnung befindet sich im Erdgeschoss eines gepflegten 3-Familienhauses. Ausgehend von dem Wohn- und Essbereich gelangt man auf die nach mit einem nach Süden ausgerichteten ausgerichtete Terrasse, an die sich der sehr großzügige Gartenbereich anschließt. In allen Wohnräumen ist Laminatboden verlegt.
Das...
Weitere Informationen
Sonstiges
Die Vermietung der Wohnung erfolgt ohne Einbauküche. Die vorhandene Einbauküche kann vom Mieter zur unentgeltlichen Nutzung übernommen werden.
Anbieter der Immobilie
Hofmann Immobilien GmbH
Fichtestr. 15, 91054 Erlangen
Online-ID: 2m8el5y
Finde Angebote wie dieses
Hier geht es zu unserem Impressum, den Allgemeinen Geschäftsbedingungen, den Hinweisen zum Datenschutz und nutzungsbasierter Online-Werbung.