

Köhldorfner Holzbau GmbH
Frau Andrea Köhldorfner
080 ···
Nr. anzeigenPreise & Kosten
Provision für Käufer
provisionsfrei
Lage
Lagevorteile – Neudeck 7, Wasserburg am Inn
Dieses TinyChalet steht in bevorzugter, ruhiger Wohnlage von Wasserburg am Inn – ideal für alle, die naturnah wohnen und dennoch schnell in der Stadt sein möchten. Die charmante Altstadt mit Einkaufsmöglichkeiten, Cafés und Restaurants ist nur wenige Minuten...
Das Haus
Kategorie
Chalet
Bezug
01.05.2026
Energie & Heizung
Warum sehe ich diese Anzeige? – Du siehst diese Anzeige basierend auf Ihrer Navigation auf unserer Website und den Suchkriterien, die du verwendet hast.
Energieausweis: für diesen Gebäudetyp nicht notwendig
Details
Objektbeschreibung
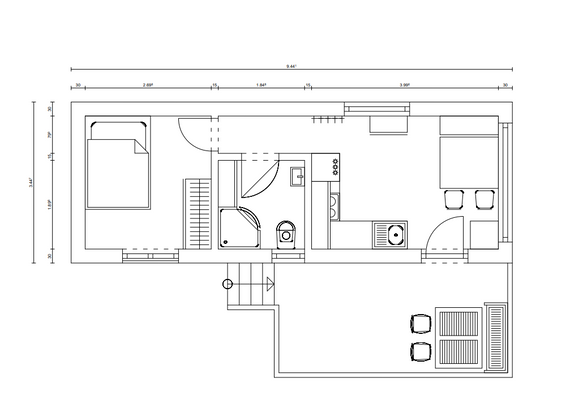
Das TinyChalet Hochgern zeigt eindrucksvoll, wie viel Wohnkomfort auf kompakten 26 m² möglich ist. Der Grundriss überzeugt durch eine flexible und klug konzipierte Raumaufteilung, ideal für Singles, Paare oder die Nutzung als Homeoffice oder stilvolles Ferienchalet. Der helle Wohn- und Essbereich schafft ein einladendes...
Ausstattung
✔ Inklusive Ausstattung
26 m² Wohnfläche
Flexible Raumaufteilung – ideal für Wohnen, Homeoffice oder Feriennutzung
Für bis zu 2 Personen geeignet
Heller Wohn-/Essbereich mit großer Fensterfront
Separater Schlafraum
Maßgefertigte Schreinerküche inklusive
Komplett ausgestattetes...
Weitere Informationen
Das Grundstück mit ca. 250 m² kann auf flexible Laufzeit gepachtet werden – für nur ca. 250 € pro Monat.
Eine attraktive Möglichkeit, hochwertiges Wohnen ohne Grundstückskauf zu realisieren.
Kontaktieren Sie uns gerne für weitere Informationen oder eine Besichtigung
Anbieter der Immobilie
Köhldorfner Holzbau GmbH
Stangern 7, 83530 Schnaitsee

Online-ID: 2m8er5n
Finde Angebote wie dieses
Hier geht es zu unserem Impressum, den Allgemeinen Geschäftsbedingungen, den Hinweisen zum Datenschutz und nutzungsbasierter Online-Werbung.