

DAHLER Potsdam | Berlin-Wannsee | Kleinmachnow
Herr Stefan Hamann
033 ···
Nr. anzeigenPreise & Kosten
Provision für Käufer
3,57% inkl. MwSt. bezogen auf den beurkundeten Kaufpreis
Lage
Die Villa befindet sich im neuen Wohngebiet "Jungfernsee Belvederes". Der Standort Jungfernsee im Norden Potsdams liegt im geschützten Bereich des Weltkulturerbes der preußischen Schlösser und Gärten. Im Süden schließt sich das Villengebiet um den Neuen Garten mit dem Schloss Cecilienhof an. Im Westen befindet sich der neue...
Das Haus
Kategorie
Einfamilienhaus
Baujahr
2018
Bezug
Nach Vereinbarung
Energie & Heizung
Warum sehe ich diese Anzeige? – Du siehst diese Anzeige basierend auf Ihrer Navigation auf unserer Website und den Suchkriterien, die du verwendet hast.
Energieausweistyp
Verbrauchsausweis
Gebäudetyp
Wohngebäude
Baujahr laut Energieausweis
2018
Wesentliche Energieträger
FERN
Gültigkeit
bis 10.06.2035
Effizienzklasse
A+
Endenergieverbrauch
26,70 kWh/(m²·a)
Weitere Energiedaten
Energieträger
Fernwärme
Heizungsart
Fußbodenheizung
Details
Objektbeschreibung
Willkommen in ihrem neuen zu Hause, einer großzügigen Villa, welches modernes Wohnen mit einem eigenen Grundstück in landschaftlich einzigartigem Ambiente verbindet. Das Wohnquartier Jungfernsee Belvederes ist das letzte verfügbare Villengebiet in Wasserlage in Potsdam. Die Grundstücke der Villen in der Emmy-Noether-Straße...
Ausstattung
. Moderne freistehende Villa im Bauhaus-Stil direkt am Jungfernsee
. Im Jahr 2018 hochwertig errichtet
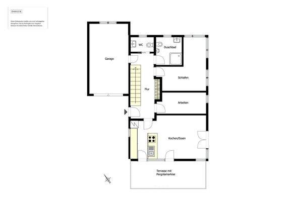
. Ca. 238 m² Wohnfläche verteilt auf 7 Zimmer inkl. anteiliger Terrassenfläche
. Ca. 81 m² Nutzfläche
. Ca. 406 m² Grundstück
. Traumhaft angelegter Garten mit hoher Privatsphäre
. Automatische...
Preisinformation
1 Garagenstellplatz
Weitere Informationen
Stichworte
Nutzfläche: 81,00 m², Anzahl der Schlafzimmer: 5, Anzahl der Badezimmer: 2, Anzahl der separaten WCs: 1, Anzahl Terrassen: 2
Sonstiges/Wohnen: Bibliothek
Anbieter der Immobilie

Online-ID: 2m8es5j
Referenznummer: D-POT8297-7-LIV
Finde Angebote wie dieses
Hier geht es zu unserem Impressum, den Allgemeinen Geschäftsbedingungen, den Hinweisen zum Datenschutz und nutzungsbasierter Online-Werbung.