

CBRE GmbH
Frau Kathrin Ratsch
040 ···
Nr. anzeigenPreise & Kosten
Provision für Mieter
provisionsfrei
Warum sehe ich diese Anzeige? – Du siehst diese Anzeige basierend auf Ihrer Navigation auf unserer Website und den Suchkriterien, die du verwendet hast.
Lage
Der Stadtteil Hammberbrook zeichnet sich besonders durch seine Lage zwischen Innenstadt, Hauptbahnhof und Hafen aus und besticht durch seine äußerst günstigen Verkehrsanbindungen zur Autobahn A1. Eine günstige ÖPNV Anbindung durch die S-/bzw. U-Bahnhöfe Hammerbrook und Berliner Tor sowie durch den Bus ist ebenfalls gegeben...
Büro-/Praxisfläche
Kategorie
Bürofläche
Baujahr
2006
Bezug
kurzfristig
Geschoss
Erdgeschoss
Energie & Heizung
Warum sehe ich diese Anzeige? – Du siehst diese Anzeige basierend auf Ihrer Navigation auf unserer Website und den Suchkriterien, die du verwendet hast.
Wärme
Strom
Energieausweistyp
Verbrauchsausweis
Gebäudetyp
Nicht-Wohngebäude
Wesentliche Energieträger
FERN
Gültigkeit
seit 11.07.2019
Endenergieverbrauch (Wärme)
69,20 kWh/(m²·a)
Endenergieverbrauch (Strom)
40,70 kWh/(m²·a)
Details
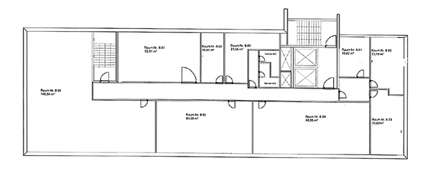
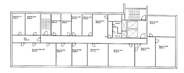
Objektbeschreibung
Die Mietflächen in diesem Bürohaus werden allen Anforderungen an den modernen Büroraum-Standard gerecht. Zur stark frequentierten Straße Heidenkampsweg schützt die Doppelfassade wirksam vor Beeinträchtigungen durch Lärmeintrag und prägt zudem das hochwertige Design des Objektes.
Ausstattung
BELÜFTUNG/KLIMATISIERUNG
Kühlung, mechanische Be-/Entlüftung, öffenbare Fenster
SONNENSCHUTZ
außenliegender, elektrischer Sonnenschutz
EDV-VERKABELUNG
CAT-7-Verkabelung, Hohlraumboden
BODENBELAG
Teppichboden/-fliesen
DECKE
abgehängte Akustikdecke, verputzte...
Weitere Informationen
Sonstiges
h82, 7. OG: Bei diesen Flächen handelt es sich um Untermietflächen, mit einer Laufzeit bis zum 31.12.2026. Danach kann ein direktes Mietverhältnis mit dem Eigentümer eingegangen werden. Zu den Flächen gehört eine Archivfläche mit ca. 388,71 m².
CBRE Homepage -...
Anbieter der Immobilie
CBRE GmbH
Valentinskamp 70, 20355 Hamburg

Online-ID: 2m8k25k
Referenznummer: 6584@13@0@18965
Finde Angebote wie dieses
Hier geht es zu unserem Impressum, den Allgemeinen Geschäftsbedingungen, den Hinweisen zum Datenschutz und nutzungsbasierter Online-Werbung.