
ohne-makler.net - Immobilien selbst vermarkten
Angebot vom Eigentümer
Kontaktiere den Anbieter schriftlich, es ist keine Telefonnummer hinterlegt.
Preise & Kosten
nicht in Warmmiete enthalten
Kaution
5.370,00
Warum sehe ich diese Anzeige? – Du siehst diese Anzeige basierend auf Ihrer Navigation auf unserer Website und den Suchkriterien, die du verwendet hast.
Lage
Die Wohnung befindet sich in Köln-Porz (Stadtteil Eil), in einer ruhigen Straße und beliebten Wohnlage im rechtsrheinischen Köln. Das Umfeld ist geprägt von gepflegten Mehrfamilienhäusern und einer angenehmen Nachbarschaft.
Alle Geschäfte des täglichen Bedarfs wie Supermärkte, Bäckereien, Apotheken sowie Schulen und...
Die Wohnung
Kategorie
Terrassenwohnung
Wohnungslage
1. Geschoss
Bezug
nach Absprache
Wohnanlage
Energie & Heizung
Warum sehe ich diese Anzeige? – Du siehst diese Anzeige basierend auf Ihrer Navigation auf unserer Website und den Suchkriterien, die du verwendet hast.
Weitere Energiedaten
Energieträger
Elektro
Heizungsart
Zentralheizung
Details
Objektbeschreibung
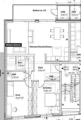
Diese helle 3-Zimmer-Neubauwohnung im bietet ca. 100 m² Wohnfläche mit einer großzügigen Wohnküche, einem Schlafzimmer, einem Kinder- oder Arbeitszimmer sowie einem modernen Bad mit bodengleicher Dusche. Der offene Wohnbereich führt direkt auf die große Terrasse - perfekt zum Entspannen im Freien.
Die Ausstattung...
Ausstattung
Balkon, Terrasse, Sonstiges (s. Text)
Bemerkungen:
- Erstbezug, da Neubau
- offene Wohnküche
- elektrische Rollläden
- Fußbodenheizung
- Vinylboden
- heller, großzügiger Schnitt
- Große Terrasse mit WPD Dielen und Schiebetüren
- Stellplatz zur Wohnung
- Videosprechanlage
Preisinformation
1 Stellplatz, Miete: 60,00 EUR
Nettokaltmiete: 1.790,00 EUR
Weitere Informationen
Sonstiges
Heizungsart: Zentralheizung
Energieträger: Strom
Energieausweis nicht vorhanden
Makleranfragen nicht erwünscht. Nach § 7 UWG sind unaufgeforderte Kontaktaufnahmen durch Makler ohne ausdrückliche Einwilligung des Empfängers verboten!
ohne-makler (OM) ist weder Anbieter noch Vermittler der...
Anbieter der Immobilie
ohne-makler.net - Immobilien selbst vermarkten
Humboldtstr. 25 A, 21509 Glinde
Angebot vom Eigentümer
Dein Ansprechpartner
Kontaktiere den Anbieter schriftlich, es ist keine Telefonnummer hinterlegt.
Online-ID: 2m8kd5r
Referenznummer: 411264
Finde Angebote wie dieses
Hier geht es zu unserem Impressum, den Allgemeinen Geschäftsbedingungen, den Hinweisen zum Datenschutz und nutzungsbasierter Online-Werbung.