
HausHirsch GmbH
Frau Marina Glaubrecht
+97 ···
Nr. anzeigenPreise & Kosten
Provision für Käufer
provisionsfrei
Abschreibung/Anlage
Denkmalschutz-Afa
Lage
Im pulsierenden Viertel von Al Furjan, Jebel Ali, gelegen, bietet diese Immobilie eine perfekte Mischung aus Komfort und Luxus. Zu den Highlights in der Nachbarschaft gehören: Täglicher Bedarf Für den täglichen Bedarf gibt es einen Supermarkt, der zu Fuß erreichbar ist. Für medizinische Notfälle sind Ärzte und Apotheken...
Die Wohnung
Bezug
Q4 2027
Wohnanlage
Details
Objektbeschreibung
Willkommen in der perfekten Junggesellenbude! Dieses Studio-Apartment ist ideal für Singles, die einen stilvollen und modernen Lebensraum suchen, sowie für Investoren, die eine hochwertige Immobilie suchen. Die Wohnung verfügt über ein elegantes und zeitgemäßes Design mit offen gestalteten Wohn- und Schlafbereichen, die den...
Ausstattung
Willkommen im Azizi Sikander! Treten Sie ein in dieses luxuriöse Studio-Apartment, das eine Reihe von modernen Annehmlichkeiten bietet, die auf Wellness, Freizeit und Komfort ausgerichtet sind. Schon beim Eintreten werden Sie von einem temperaturgeregelten Swimmingpool begrüßt, der an heißen Tagen zu einem erfrischenden Bad...
Weitere Informationen
Sonstiges
DubaiView - Our selected properties in Dubai - https://dubaiview.com/properties/
Stichworte
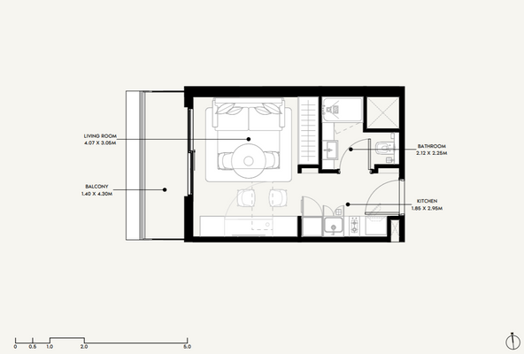
Nutzfläche: 25,07 m², Anzahl der Schlafzimmer: 1, Anzahl der Badezimmer: 1, Anzahl Balkone: 1, Balkon-Terrassen-Fläche: 5,99 m², Bundesland: Dubai
Anbieter der Immobilie
Online-ID: 2m8kr5q
Referenznummer: Sikander STD APT - DV-8840
Finde Angebote wie dieses
Hier geht es zu unserem Impressum, den Allgemeinen Geschäftsbedingungen, den Hinweisen zum Datenschutz und nutzungsbasierter Online-Werbung.