

Hansestadt Immobilien GmbH
Frau Nina Stromer
041 ···
Nr. anzeigenPreise & Kosten
Provision für Käufer
3,57 % inkl. gesetzl. MwSt.
Lage
Diese Doppelhaushälfte befindet sich im südlich gelegenen Lüneburger Stadtteil Häcklingen - einer der beliebtesten und familienfreundlichsten Wohngegenden der Hansestadt. Nur etwa sechs Kilometer von der historischen Altstadt entfernt, bietet Häcklingen ein entspanntes, naturnahes Wohnumfeld mit gleichzeitig hervorragender...
Das Haus
Kategorie
Doppelhaushälfte
Baujahr
1983
Bezug
nach Vereinbarung
Energie & Heizung
Warum sehe ich diese Anzeige? – Du siehst diese Anzeige basierend auf Ihrer Navigation auf unserer Website und den Suchkriterien, die du verwendet hast.
Energieausweistyp
Bedarfsausweis
Gebäudetyp
Wohngebäude
Wesentliche Energieträger
Gas
Gültigkeit
06.09.2025 bis 07.09.2035
Effizienzklasse
E
Endenergiebedarf
158,55 kWh/(m²·a)
Weitere Energiedaten
Energieträger
Gas
Heizungsart
Zentralheizung
Details
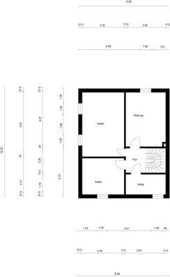
Objektbeschreibung
Entdecken Sie Ihr neues Zuhause in dieser charmanten Doppelhaushälfte mit dem großen Wintergarten der dieses Haus zu etwas besonderem macht. Mit einer Wohnfläche von 136 m² und einem großzügigen Grundstück von 515 m² bietet dieses Haus viel Platz für die ganze Familie.
Die Immobilie verfügt über 4 Zimmer, 3...
Ausstattung
. Wintergarten, Baujahr 1992
. Beliebte Lage in Häcklingen
. Gartenhaus
. Vollkeller (Feuchtigkeitsschäden, Angebot liegt vor)
. Carport und davorliegender Stellplatz
Preisinformation
2 Carportplätze
Weitere Informationen
Sonstiges
Bitte haben Sie Verständnis dafür, dass wir unseren Auftraggebern Diskretion zugesagt haben und Ihrer Anfrage nach einem ausführlichen Exposé nur nachkommen können, wenn Sie uns Ihren vollständigen Namen und Ihre postalische Anschrift mitteilen. Anfragen, die ohne die vollständigen Kontaktdaten übersandt werden...
Anbieter der Immobilie

Online-ID: 2m8lm5z
Referenznummer: HI2025262-1
Finde Angebote wie dieses
Hier geht es zu unserem Impressum, den Allgemeinen Geschäftsbedingungen, den Hinweisen zum Datenschutz und nutzungsbasierter Online-Werbung.