
Neutor Real GmbH
Herr Daniel Hausberger
+43 ···
Nr. anzeigenPreise & Kosten
Provision für Käufer
Bitte beachte, das Angebot kann bei Vertragsabschluss die Zahlung einer Provision beinhalten. Weitere Informationen erhältst Du vom Anbieter.
Lage
Matzleinsdorfer Platz, Südtiroler Platz U1, Wien Hauptbahnhof, Waldmüllerpark, Alois-Drasche-Park, Rudolf-Salinger-Park, Leopold Rister Park, Wochenmarkt Siebenbrunnenplatz, Wiedner Gymnasium, HTL Spengergasse, Tram 1/62, Buslinie 14A/N62, BadnerBahn
Die Wohnung
Wohnungslage
Erdgeschoss
Bezug
Nach KV
Wohnanlage
Energie & Heizung
Warum sehe ich diese Anzeige? – Du siehst diese Anzeige basierend auf Ihrer Navigation auf unserer Website und den Suchkriterien, die du verwendet hast.
Heizwärmebedarf (HWB)
52,05 kWh/(m²·a)
Gesamtenergieeffizienz (fGEE)
1,46
Weitere Energiedaten
Energieträger
Fernwärme
Heizungsart
Zentralheizung
Details
Objektbeschreibung
Zum Verkauf gelangt diese traumhaft sanierte 3-Zimmer Wohnung im Erstbezug. Die Nähe zum Hauptbahnhof bietet Ihnen eine hervorragender Verkehrsanbindung. Aufgrund des im Innenhof abfallenden Geländes befindet sich die Wohnung gefühlt im 1. Obergeschoss. Die üblichen Nachteile von Erdgeschosswohnungen, wie aufsteigende...
Weitere Informationen
Stichworte
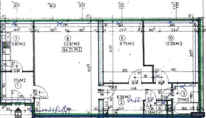
Nutzfläche: 64,71 m², Gesamtfläche: 64,71 m², Anzahl der Badezimmer: 1, Anzahl der separaten WCs: 1, Bundesland: Wien, Wohnungsnr.: 4, modernisiert: 2025
Sonstiges/Wohnen: seniorengerechtes Wohnen
Anbieter der Immobilie
Neutor Real GmbH
Neutorgasse 13, 1010 WIEN
Online-ID: 2m8ms5h
Referenznummer: OBGC202511251534448740fab1b12dd
Finde Angebote wie dieses
Günstige Immobilienfinanzierung einfach online berechnen
Persönliches Angebot berechnenWarum sehe ich diese Werbung? – Du siehst diese Werbung basierend auf Deiner Navigation auf unserer Website und der von Dir verwendeten Suchkriterien.
Diese Werbung wird bezahlt von durchblicker
Werbung melden
Hier geht es zu unserem Impressum, den Allgemeinen Geschäftsbedingungen, den Hinweisen zum Datenschutz und nutzungsbasierter Online-Werbung.