

Spittel Bau GmbH
Herr Albert Feix
074 ···
Nr. anzeigenPreise & Kosten
Provision für Käufer
3.57 % inkl. MwSt.
Lage
Rund 21.000 Einwohner wohnen in der Schramberger Talstadt bzw. im Stadtteil Tennenbronn und auf der umliegenden Hochebene in den Stadtteilen Sulgen, Waldmössingen, Heiligenbronn und Schönbronn. Ursprünglich Uhren- und Industriestadt, hat sich Schramberg heute zu einer modernen Stadt entwickelt, die Kultur, Bildung, Sport...
Die Wohnung
Wohnungslage
1. Geschoss
Bezug
sofort
Wohnanlage
Energie & Heizung
Warum sehe ich diese Anzeige? – Du siehst diese Anzeige basierend auf Ihrer Navigation auf unserer Website und den Suchkriterien, die du verwendet hast.
Energieausweistyp
Bedarfsausweis
Gebäudetyp
Wohngebäude
Baujahr laut Energieausweis
1993
Gültigkeit
bis 19.02.2030
Effizienzklasse
C
Endenergiebedarf
94,70 kWh/(m²·a)
Weitere Energiedaten
Energieträger
Gas
Heizungsart
Etagenheizung
Details
Objektbeschreibung
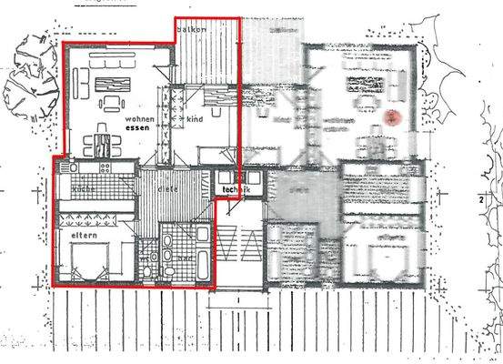
Die zum Kauf stehende, frisch renovierte Wohnung, befindet sich im 1. Obergeschoss eines Mehrfamilienhauses. Das großzügige Wohnerlebnis besitzt 3,5 Zimmer, verteilt auf rund 92m². Die Besonderheit - zum Zentrum von Sulgen sind es nur ein paar Minuten zu Fuß, Einkaufsmöglichkeiten befinden sich fast vor der Türe.
Wir...
Ausstattung
- 1 x Wohn- Esszimmer
- 1 x Wohn- Esszimmer
- 2 x Zimmer
- Küche
- 1 x Tageslichtbad mit Wanne, Dusche, WC, 2 Waschbecken
- 1 x separates Gäste-WC
- großzügiger Balkon
- 1 x Kellerraum
- 1 x Garage
- 1 x Außenstellplatz
- gemeinschaftlicher Waschraum
Weitere Informationen
Sonstiges
Energieausweis: Bedarfsausweis gültig von: 19.02.2020
Endenergiebedarf Wärme: 94.7 kWh/(m²a) inklusive Warmwasser
Wesentliche Energieträger Heizung: Befeuerung Gas
Energieeffizienzklasse: C
Baujahr: 1993
Beim Kauf der nachfolgend angebotenen Immobilie beträgt der monatliche Aufwand 947,04...
Anbieter der Immobilie

Online-ID: 2m8n45b
Referenznummer: 3033
Finde Angebote wie dieses
Hier geht es zu unserem Impressum, den Allgemeinen Geschäftsbedingungen, den Hinweisen zum Datenschutz und nutzungsbasierter Online-Werbung.