

Bürosuche sharednc.com
Herr/Frau Bürosuche sharednc.com
Kontaktiere den Anbieter schriftlich, es ist keine Telefonnummer hinterlegt.
Preise & Kosten
Provision für Mieter
provisionsfrei
Warum sehe ich diese Anzeige? – Du siehst diese Anzeige basierend auf Ihrer Navigation auf unserer Website und den Suchkriterien, die du verwendet hast.
Lage
Die Otto-Wagner-Straße liegt mitten im Zentrum von Germering - ca. 10 km westlich von München - und bietet Unternehmen eine repräsentative, bestens erreichbare Geschäftsadresse mit hoher Sichtbarkeit und Kundennähe.
Exzellente Erreichbarkeit: Über den Münchner Autobahnring sowie die A96 sind City, Umland und...
Büro-/Praxisfläche
Kategorie
Bürofläche
Bezug
Sofort
Details
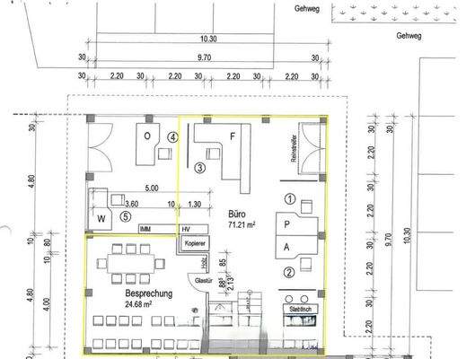
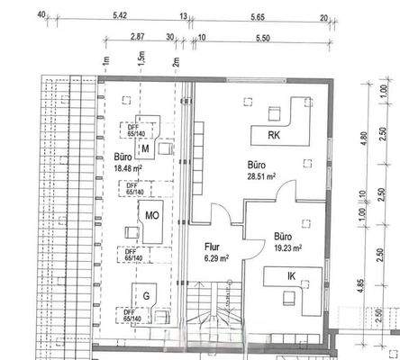
Objektbeschreibung
(Objekt-Nr.: 226085 X)
Objektkategorie: Eigene Bürofläche
Titel des Angebots: Bürofläche 2
***Flexible Konditionen***
Mindestlaufzeit: 3 Monate
Kündigungsfrist: 3 Monate zum Monatsende
Verfügbar ab: Sofort
Möbliert: Nein
Das stilvolle Bürohaus im Zentrum von Germering wurde...
Ausstattung
- Moderne dunkle 80x80 Fliesen im EG
- Moderner dunkler sowie heller Eichenholzlaminat im OG
- 4 private Stellplätze vor dem Bürohaus
- Exklusive Damen- und Herrentoilette
- Vollausgestattete Kaffetheke
- Sozialraum mit Einbauküche im Keller
- Abgetrennter Büroraum im Eingangsbereich mit Theke
-...
Anbieter der Immobilie
Bürosuche sharednc.com
Hohenzollernring 55, 50672 Köln

Herr/Frau Bürosuche sharednc.com
Dein Ansprechpartner
Kontaktiere den Anbieter schriftlich, es ist keine Telefonnummer hinterlegt.
Online-ID: 2m8nv5x
Referenznummer: 226085 X
Finde Angebote wie dieses
Hier geht es zu unserem Impressum, den Allgemeinen Geschäftsbedingungen, den Hinweisen zum Datenschutz und nutzungsbasierter Online-Werbung.