

Neufeld Immobilien GmbH
Frau Hanna Cornelius
071 ···
Nr. anzeigenPreise & Kosten
Kaution
3MKM
Warum sehe ich diese Anzeige? – Du siehst diese Anzeige basierend auf Ihrer Navigation auf unserer Website und den Suchkriterien, die du verwendet hast.
Lage
Eingebettet in sanfte Weinberge, malerische Wälder und weitläufige Wiesen liegt die charmante Gemeinde Oedheim am idyllischen Unterlauf des Kochers - im landschaftlich reizvollen Norden des Landkreises Heilbronn. Gemeinsam mit dem Ortsteil Degmarn vereint Oedheim die Ruhe der Natur mit den Annehmlichkeiten einer modernen...
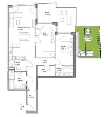
Die Wohnung
Wohnungslage
4. Geschoss
Bezug
sofort
Wohnanlage
Energie & Heizung
Warum sehe ich diese Anzeige? – Du siehst diese Anzeige basierend auf Ihrer Navigation auf unserer Website und den Suchkriterien, die du verwendet hast.
Weitere Energiedaten
Heizungsart
Fußbodenheizung, Luft-/Wasser-Wärmepumpe
Details
Objektbeschreibung
Willkommen in Ihrem neuen Zuhause - einer außergewöhnlichen Wohnung, die modernes Wohnen, hochwertige Ausstattung und eine einmalige Lage harmonisch vereint. Direkt am malerischen Ufer des Kochers gelegen, genießen Sie hier täglich den beruhigenden Blick auf das Wasser und das sanfte Rauschen der Natur. Der angrenzende...
Ausstattung
- Direkte Kocherlage mit Kocherblick
- Verkehrsberuhigte Lage durch Angrenzung an Naturschutzgebiet
- Effizienzhaus KfW 40 Plus
- Deckenhöhe von ca. 2,58m
- Deckenhöhe im DG von ca. 2,84m
- Überhohe weiße Türen ca. 2,10m
- Terrassen/Balkone/Dachterrassen mit Natursteinbelag
- Großformatige Fliesen (60cm...
Preisinformation
1 Tiefgaragenstellplatz, Miete: 75,00 EUR
Weitere Informationen
Sonstiges
Die hochwertige Einbauküche inklusive Elektroeinbaugeräten wird mit zzgl. 110€ monatlich veranschlagt.
Bei Bedarf können gerne mehrere Tiefgaragenstellplätze oder Außenstellplätze angemietet werden. Diese belaufen sich, je nach Kategorie und Verfügbarkeit, auf 40 - 75€ pro Stellplatz und...
Anbieter der Immobilie

Online-ID: 2m8re52
Referenznummer: Deg_17.3
Finde Angebote wie dieses
Hier geht es zu unserem Impressum, den Allgemeinen Geschäftsbedingungen, den Hinweisen zum Datenschutz und nutzungsbasierter Online-Werbung.