

BoHolz Haus
Herr Wolfram Gebhardt
017 ···
Nr. anzeigenPreise & Kosten
Provision für Käufer
provisionsfrei
Lage
Eberbach, idyllisch gelegen im romantischen Neckartal, gehört zum Rhein-Neckar-Kreis in Baden-Württemberg und bietet eine hohe Lebensqualität in naturnaher Umgebung. Die charmante Altstadt mit ihren historischen Fachwerkhäusern, gemütlichen Cafés und vielseitigen Einkaufsmöglichkeiten verleiht dem Ort ein besonderes Flair...
Das Haus
Kategorie
Einfamilienhaus
Baujahr
2026
Energie & Heizung
Warum sehe ich diese Anzeige? – Du siehst diese Anzeige basierend auf Ihrer Navigation auf unserer Website und den Suchkriterien, die du verwendet hast.
Weitere Energiedaten
Haustyp
KfW 55
Heizungsart
Fußbodenheizung, Luft-/Wasser-Wärmepumpe
Details
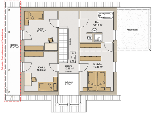
Objektbeschreibung
Modernes Einfamilienhaus mit Homeoffice – flexibel, stilvoll, durchdacht
Willkommen in Ihrem neuen Zuhause. Dieses zeitlos modern gestaltete Einfamilienhaus überzeugt durch ein zukunftsorientiertes Wohnkonzept und eine klare, elegante Architektur. Der großzügige Wohn-, Ess- und Kochbereich mit über 42 m² bildet das...
Ausstattung
Mit unschlagbaren VORTEILEN
* Nachhaltige diffusionsoffene Außenwände mit Holzfaserdämmplatte für sommerlichen Hitzeschutz
* Sicherheitsgeprüfte Haustüre (RC2N Verriegelung) - Schwellenabdichtung mit Folienverbundblech – dies ermöglicht einen schwellenfreien Zugang
* Dachkonstruktion mit einer Schneelast von...
Weitere Informationen
Sonstiges
* Individuell
* Familiär
* Nachhaltig
* Traditionell
Partnerschaftlich mit voller Kompetenz!
Finanzierungs- und GrundstückSERVICE
Im Preis ist das GRUNDSTÜCK (Erbpacht) und die BODENPLATTE enthalten
GERNE BAUEN WIR DAS HAUS AUCH AUF IHREM EIGENEN GRUNDSTÜCK
Das Angebot versteht...
Dokumente
Anbieter der Immobilie
BoHolz Haus
Kantstraße 8, 64668 Rimbach

Online-ID: 2m8sc5s
Referenznummer: GE-18-12.25-69412
Finde Angebote wie dieses
Hier geht es zu unserem Impressum, den Allgemeinen Geschäftsbedingungen, den Hinweisen zum Datenschutz und nutzungsbasierter Online-Werbung.