
BEST PLACE Immobilien GmbH & Co. KG
Ihr Best Place Vertriebsteam
004 ···
Nr. anzeigenPreise & Kosten
Provision für Käufer
3,57%
Lage
Inselliebe entsteht auf der sonnigen Südseite der Insel Eiswerder direkt neben dem Eiswerderpark. Wassersportler kommen hier auf Ihre Kosten: Ein SUP Center und mehrere Wassersportvereine sind auf der Insel aktiv. Supermärkte, Restaurants, Kitas und Schulen erreichen Sie in wenigen Minuten, ebenso wie den Krienicke Park mit...
Die Wohnung
Wohnungslage
2. Geschoss
Wohnanlage
Energie & Heizung
Warum sehe ich diese Anzeige? – Du siehst diese Anzeige basierend auf Ihrer Navigation auf unserer Website und den Suchkriterien, die du verwendet hast.
Energieausweistyp
Bedarfsausweis
Gebäudetyp
Wohngebäude
Baujahr laut Energieausweis
2025
Wesentliche Energieträger
FERN
Gültigkeit
bis 19.11.1935
Endenergiebedarf
81,80 kWh/(m²·a)
Weitere Energiedaten
Energieträger
Gas
Heizungsart
Fußbodenheizung
Details
Objektbeschreibung
Willkommen in Ihrer Havel-Residenz!
Diese sonnendurchflutete Neubau-Wohnung entsteht im Suntower direkt am Wasser: Ein fantastischer Havelblick und eine handverlesene Ausstattung machen sie zum perfekten Rückzugsort. Da auf jeder Etage nur zwei Wohnungen liegen, genießen Sie ein wunderbares Haus-im-Haus-Gefühl...
Ausstattung
.Sonnen-Loggia mit Wasserblick
.Bodentiefe Panoramafenster (3-fach isolierverglast)
.En suite Wannenbad
.Zweites Bad mit Dusche
.Hochwertige Markensanitärausstattung
.Italienische Feinsteinzeugfliesen von Caesar Ceramiche im Format 60 x 120
.Fußbodenheizung und Handtuchheizkörper im...
Weitere Informationen
Stichworte
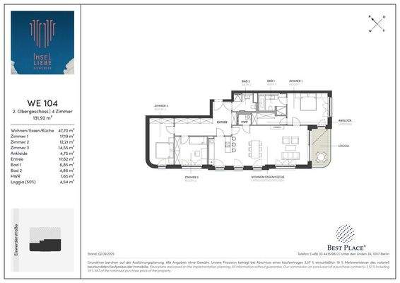
Tiefgarage vorhanden, Gesamtfläche: 131,92 m², vermietbare Fläche: 131,92 m², Bundesland: Berlin, 10 Etagen, Wohnungsnr.: WE 104
Anbieter der Immobilie
Online-ID: 2m8tk5v
Referenznummer: INSEL-WE104
Finde Angebote wie dieses
Hier geht es zu unserem Impressum, den Allgemeinen Geschäftsbedingungen, den Hinweisen zum Datenschutz und nutzungsbasierter Online-Werbung.