

Lehner Haus GmbH
Frau Luise Schock
017 ···
Nr. anzeigenPreise & Kosten
Provision für Käufer
provisionsfrei
Lage
Sontheim an der Brenz zeichnet sich durch eine bemerkenswerte Kombination aus idyllischem, naturnahen Charakter und relativer Nähe zu größeren Städten aus, was zu einer hohen Lebensqualität der Bevölkerung führt. Die Gemeinde verbindet auf bemerkenswerte Weise die Vorzüge ländlicher Ruhe mit der Nähe zu bedeutenden...
Die Wohnung
Kategorie
Terrassenwohnung
Wohnungslage
1. Geschoss (Erdgeschoss)
Bezug
01.11.2026
Wohnanlage
Energie & Heizung
Warum sehe ich diese Anzeige? – Du siehst diese Anzeige basierend auf Ihrer Navigation auf unserer Website und den Suchkriterien, die du verwendet hast.
Weitere Energiedaten
Energieträger
Elektro
Haustyp
KfW 40
Details
Objektbeschreibung
Das Projekt im Neubaugebiet Weiherbraike 2 in Sontheim an der Brenz umfasst sieben Mehrfamilienhäuser, die jeweils aus vier großzügigen Wohnungen bestehen. Im Rahmen des Bauprojekts werden somit insgesamt 28 attraktive Eigentumswohnungen in nachhaltiger Holzständerbauweise errichtet. Die nachhaltige Bauweise wird durch...
Ausstattung
- nachhaltige Holzständerbauweise
- großflächige Photovoltaikanlage
- Energiespeicher
- effiziente Infrarotheizung
- dezentrale Warmwasserwärmepumpe
- bodengleiche Dusche
- Sanitärausstattung von renommierten Markenherstellern
- großflächige, bodentiefe Fenster
- Terrasse
Weitere Informationen
Sonstiges
Die Lehner Haus GmbH übernimmt keine Gewähr für die Aktualität, Vollständigkeit, Qualität und Korrektheit der bereitgestellten Informationen.
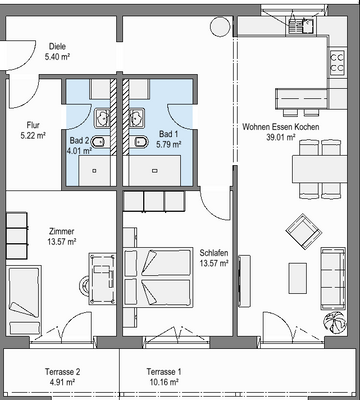
Die Grundrisse und Zeichnungen sind nicht maßstabsgerecht.
Heizungsart:
Wand-/Deckenheizung
Heizmethode:
Individuell
Dokumente
Anbieter der Immobilie
Lehner Haus GmbH
Aufhausener Str. 29-33, 89520 Heidenheim an der Brenz

Online-ID: 2m8u25l
Finde Angebote wie dieses
Hier geht es zu unserem Impressum, den Allgemeinen Geschäftsbedingungen, den Hinweisen zum Datenschutz und nutzungsbasierter Online-Werbung.