
Vereinigte Volksbanken eG
Herr Bruno Recktenwald
004 ···
Nr. anzeigenPreise & Kosten
Provision für Käufer
3,570% inkl. MwSt.
Lage
Das Mehrfamilienhaus befindet sich in einer äußerst begehrten und gut angebundenen Lage in Reutlingen. Eingebettet im Herzen der Stadt, bietet die Umgebung eine ideale Kombination aus urbanem Lebensstil und naturnahem Wohnen. Die Nähe zum Altstadtzentrum ermöglicht es den Bewohnern, sowohl von einer ausgezeichneten...
Das Haus
Kategorie
Mehrfamilienhaus
Details
Objektbeschreibung
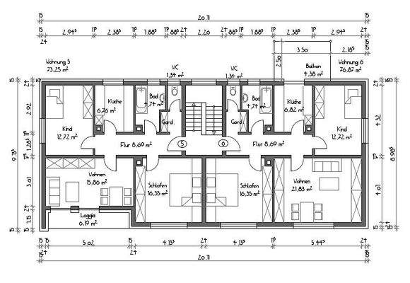
Renditeobjekt am Fuße der Achalm
Zum Verkauf steht ein attraktives Renditeobjekt in erstklassiger Wohnlage am Fuße der Achalm. Dieses 8-Parteien-Haus bietet eine ideale Möglichkeit für Kapitalanleger, die Wert auf eine solide Investition legen.
Die Wohnfläche verteilt sich auf großzügige Einheiten mit unterschiedlichen...
Weitere Informationen
Stichworte
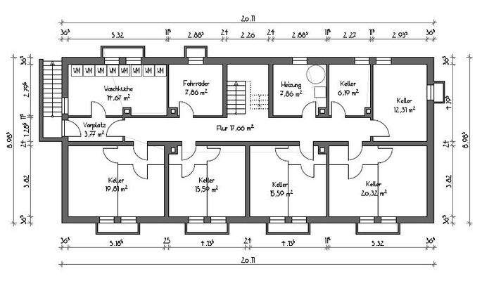
Anzahl Balkone: 8, Anzahl der Wohneinheiten: 8
Anbieter der Immobilie
Vereinigte Volksbanken eG
Friedrich-List-Platz 1, 71032 Böblingen
Online-ID: 2m8w75r
Referenznummer: 251221
Finde Angebote wie dieses
Hier geht es zu unserem Impressum, den Allgemeinen Geschäftsbedingungen, den Hinweisen zum Datenschutz und nutzungsbasierter Online-Werbung.