
allkauf haus GmbH
Herr Vitali Stettinger
+49 ···
Nr. anzeigenPreise & Kosten
Provision für Käufer
provisionsfrei
Lage
Das Reihenendhaus befindet sich in einer ruhigen Wohngegend in Aschaffenburg Damm, die durch ihre gute Infrastruktur überzeugt. In der nahen Umgebung finden Sie alles, was Sie für den Alltag benötigen: einen Bahnhof, eine Grundschule, einen Kindergarten und einen Spielplatz - ideal für Familien. Die perfekte Mischung aus...
Das Haus
Kategorie
Reihenendhaus
Baujahr
2027
Energie & Heizung
Warum sehe ich diese Anzeige? – Du siehst diese Anzeige basierend auf Ihrer Navigation auf unserer Website und den Suchkriterien, die du verwendet hast.
Weitere Energiedaten
Haustyp
KfW 40
Heizungsart
Fußbodenheizung, Luft-/Wasser-Wärmepumpe
Details
Objektbeschreibung
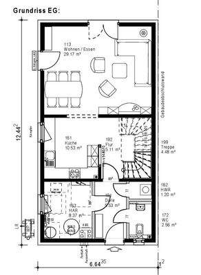
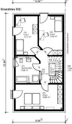
Willkommen in Ihrem neuen Reihenendhaus, das nach Ihren individuellen Wünschen und Vorstellungen projektiert wird! Mit einer großzügigen Wohnfläche von 189 m² und 6 Zimmern, darunter 5 Schlafzimmer, bietet dieses Haus ausreichend Platz für die gesamte Familie. Der durchdachte Grundriss erstreckt sich über 3 Etagen, sodass Sie...
Ausstattung
Das Reihenendhaus besticht durch eine gehobene Ausstattung. Die Bodenbeläge aus Fliesen und Laminat sind nicht nur stilvoll, sondern auch besonders pflegeleicht und langlebig. Die Wahl der Wärmepumpe als Befeuerungsart garantiert Ihnen eine effiziente Wärmeversorgung, die sowohl umweltfreundlich als auch kostensparend ist...
Weitere Informationen
Sonstiges
allkauf bietet Ihnen maximale Sicherheit, kurze Lieferzeiten und garantierte Fertigstellung. Vertrauen Sie auf unsere Festpreisgarantie und die Sicherheit einer transparenten Kostenplanung. Zu allen Häusern gehört:
- Energieeffizienzwand
- Echtholztreppe
- Luft-Wasser-Wärmepumpe
-...
Anbieter der Immobilie
allkauf haus GmbH
Ludwig Erhard Str. 2, 68162 Bad Vilbel
Online-ID: 2m8y45r
Referenznummer: 3019-13-kw51-61558 Double 11 DG Keller BY TF
Finde Angebote wie dieses
Hier geht es zu unserem Impressum, den Allgemeinen Geschäftsbedingungen, den Hinweisen zum Datenschutz und nutzungsbasierter Online-Werbung.