
Marko Künne Immobilien
034 ···
Nr. anzeigenPreise & Kosten
Provision für Käufer
27.132,-€
Abschreibung/Anlage
Denkmalschutz-Afa
Lage
Die Wohnung befindet sich in ruhiger und gefragter Lage in der Bergstraße in Markkleeberg. Die kurze, verkehrsberuhigte Anliegerstraße bietet ein angenehmes Wohnumfeld ohne störenden Durchgangsverkehr.
Geschäfte des täglichen Bedarfs, Bäckereien, Apotheken sowie Ärzte und Kindergärten sind in wenigen Minuten erreichbar...
Das Haus
Kategorie
Reihenmittelhaus
Baujahr
1926
Energie & Heizung
Warum sehe ich diese Anzeige? – Du siehst diese Anzeige basierend auf Ihrer Navigation auf unserer Website und den Suchkriterien, die du verwendet hast.
Weitere Energiedaten
Energieträger
Gas
Heizungsart
Fußbodenheizung, offener Kamin
Details
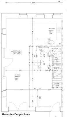
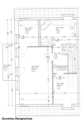
Objektbeschreibung
Reihenhaus im historischen Hofgut Zöbigker mit Garten und Balkon, direkt am See
Zum Verkauf steht eine außergewöhnliche Eigentumswohnung in einem denkmalgeschützten Hofgut mit einzigartigem Flair. Die Immobilie wurde im Jahr 2003 hochwertig zu Wohnraum umgenutzt und vereint seither geschichtsträchtige Bausubstanz mit...
Weitere Informationen
Sonstiges
Alle Angaben sind ohne Gewähr und basieren ausschließlich auf Informationen, die uns von unserem Auftraggeber zur Verfügung gestellt wurden. Wir übernehmen keine Gewähr für die Vollständigkeit, Richtigkeit und Aktualität dieser Angaben.
Energiepass
Energieausweis wird bei Besichtigung...
Anbieter der Immobilie
Online-ID: 2m8yp5f
Referenznummer: 605375
Finde Angebote wie dieses
Hier geht es zu unserem Impressum, den Allgemeinen Geschäftsbedingungen, den Hinweisen zum Datenschutz und nutzungsbasierter Online-Werbung.