
WAT Gesellschaft für Haus- und Grundeigentum Vermittlung und Verwaltung mbH
Firma WAT Gesellschaft für Haus- + Grundeigentum Vermittlung und Verwaltung mbH
023 ···
Nr. anzeigenPreise & Kosten
in Warmmiete enthalten
Kaution
2.550,00
Provision für Mieter
provisionsfrei
Warum sehe ich diese Anzeige? – Du siehst diese Anzeige basierend auf Ihrer Navigation auf unserer Website und den Suchkriterien, die du verwendet hast.
Lage
Ihre neuen Gewerberäume befinden sich in einem familiären und modernen Wohnumfeld in ruhiger, grüner und sehr guter Lage von Wattenscheid Höntrop. Sämtliche Infrastruktureinrichtungen, Geschäfte des alltäglichen Bedarfs, Ärztehaus Höntrop, Schulen und Kindergarten befinden sich in Wohnnähe. Gute Anbindungen an die Autobahn...
Büro-/Praxisfläche
Kategorie
Bürofläche
Geschoss
Erdgeschoss
Energie & Heizung
Warum sehe ich diese Anzeige? – Du siehst diese Anzeige basierend auf Ihrer Navigation auf unserer Website und den Suchkriterien, die du verwendet hast.
Energieausweistyp
Bedarfsausweis
Gebäudetyp
Wohngebäude
Wesentliche Energieträger
Luft/Wasser Wärmepumpe
Gültigkeit
04.10.2024 bis 04.10.2034
Effizienzklasse
A+
Endenergiebedarf
20,00 kWh/(m²·a)
Weitere Energiedaten
Heizungsart
Fußbodenheizung, Luft-/Wasser-Wärmepumpe, Zentralheizung
Details
Objektbeschreibung
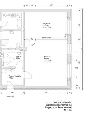
Es handelt sich um einen Erstbezug eines Effizienzhauses 70 EE. Beheizt wird das Objekt über eine Wärmepumpe. Die Raumaufteilung ist dem beigefügten Grundriss zu entnehmen. Die Gewerbeeinheit ist ab sofort verfügbar.
Insgesamt stehen 76,87 m² Gewerbefläche zur Verfügung, wobei die Bürofläche großzügige 63,32 m²...
Preisinformation
Mietzuschläge: 150,00 EUR
Weitere Informationen
Sonstiges
Besichtigungstermine
Wir freuen uns von Ihnen zu hören und vereinbaren gerne einen persönlichen Besichtigungstermin mit Ihnen.
Bitte senden Sie uns eine Kontaktanfrage über die Schaltfläche Anbieter kontaktieren /- bzw. Nachricht senden.
Bitte geben Sie uns vorab folgende Informationen...
Anbieter der Immobilie
Firma WAT Gesellschaft für Haus- + Grundeigentum Vermittlung und Verwaltung mbH
Dein Ansprechpartner
023 ···
Nr. anzeigenOnline-ID: 2m9335n
Referenznummer: 212709
Finde Angebote wie dieses
Hier geht es zu unserem Impressum, den Allgemeinen Geschäftsbedingungen, den Hinweisen zum Datenschutz und nutzungsbasierter Online-Werbung.