
Kreissparkasse Bautzen
Herr Tobias Grützner
035 ···
Nr. anzeigenPreise & Kosten
Provision für Käufer
3,57 % inkl. MwSt.
Lage
Das angebotene Gewerbeobjekt befindet sich in der Gemeinde Cunewalde, welche sich über die Jahre zu einem florierenden Wirtschaftsstandort in der Oberlausitz entwickelt hat. Derzeit sind im Gemeindegebiet 9 kleine bis mittelständische Industriebetriebe sowie 24 Gewerbebetriebe ansässig. Die rund 5000 Einwohner profitieren von...
Die Industriefläche
Kategorie
Werkstatt
Baujahr
1988
Bezug
sofort
Energie & Heizung
Warum sehe ich diese Anzeige? – Du siehst diese Anzeige basierend auf Ihrer Navigation auf unserer Website und den Suchkriterien, die du verwendet hast.
Wärme
Strom
Energieausweistyp
Bedarfsausweis
Gebäudetyp
Nicht-Wohngebäude
Baujahr laut Energieausweis
1988
Wesentliche Energieträger
Gas, Elektroenergie
Gültigkeit
13.08.2025 bis 13.08.2035
Endenergiebedarf (Wärme)
287,70 kWh/(m²·a)
Endenergiebedarf (Strom)
17,60 kWh/(m²·a)
Weitere Energiedaten
Energieträger
Elektro, Gas
Heizungsart
Zentralheizung
Details
Objektbeschreibung
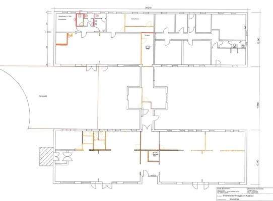
Das zweiflügliche Gebäude wurde 1988 als Kinderkrippe erbaut und einige Jahre als solche betrieben. Später erfolgte die Nutzung als Postverteilerzentrum durch die Deutsche Post. Seit 2021 steht das Gebäude nun leer und wartet auf Ihre Ideen für die rund 800m² große, ebenerdige Gewerbefläche. Durch die Lage im Mischgebiet ist...
Ausstattung
Das Objekt wurde kurz vor der Wendezeit massiv und ebenerdig errichtet. Das Dach und die Fassade sind noch aus dem Erbauungsjahr (1988), die Fenster, Eingangstüren, Heizung sowie Elektrik wurden bereits erneuert.
Das Objekt wird durch eine Gas-Heizungsanlage aus dem Jahre 1996 beheizt. Eine Umstellung auf Fernwärme könnte...
Weitere Informationen
Sonstiges
Alle Angaben haben wir vom Auftraggeber erhalten. Für deren Richtigkeit können wir keine Gewähr übernehmen. Einen Zwischenverkauf bzw. eine Zwischenvermietung behält sich der Auftraggeber ausdrücklich vor.
Stichworte
Stellplatz vorhanden, Gesamtfläche: 800,00 m², Bundesland: Sachsen, 1 Etagen...
Anbieter der Immobilie
Kreissparkasse Bautzen
Kornmarkt 1, 02625 Bautzen
Online-ID: 2m93l5t
Referenznummer: AL-2033
Finde Angebote wie dieses
Hier geht es zu unserem Impressum, den Allgemeinen Geschäftsbedingungen, den Hinweisen zum Datenschutz und nutzungsbasierter Online-Werbung.