
ohne-makler.net - Immobilien selbst vermarkten
Privat von Astrid Honkanen
Kontaktiere den Anbieter schriftlich, es ist keine Telefonnummer hinterlegt.
Preise & Kosten
Provision für Käufer
provisionsfrei
Lage
Das Penthouse befindet sich im Brunckhorstweg direkt am Übergang zu Eimsbüttel, einem der beliebtesten Wohnviertel Hamburgs. Die Lage verbindet städtische Lebendigkeit mit der Ruhe einer gepflegten Nebenstraße. Cafés, kleine Restaurants, Bäckereien, Boutiquen und alle Geschäfte des täglichen Bedarfs sind bequem zu Fuß...
Die Wohnung
Kategorie
Penthouse
Wohnungslage
5. Geschoss
Bezug
01.02.2026
Wohnanlage
Energie & Heizung
Warum sehe ich diese Anzeige? – Du siehst diese Anzeige basierend auf Ihrer Navigation auf unserer Website und den Suchkriterien, die du verwendet hast.
Energieausweistyp
Verbrauchsausweis
Gebäudetyp
Wohngebäude
Effizienzklasse
B
Endenergieverbrauch
61,00 kWh/(m²·a)
Weitere Energiedaten
Energieträger
Gas
Heizungsart
Fußbodenheizung
Details
Objektbeschreibung
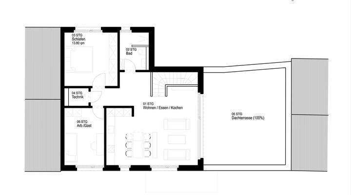
Dieses lichtdurchflutete Penthouse vereint modernes Design, ein offenes Raumgefühl und eine seltene 37 m² große Dachterrasse - ein Ort, der den Wohnbereich nahezu nahtlos ins Freie erweitert. Fast ausschließlich bodentiefe Fenster bringen den Himmel nach innen und lassen den gesamten Raum großzügig wirken.
Die Wohnung...
Ausstattung
Dachterrasse, Fahrstuhl, Einbauküche, Parkett, Fliesen
Bemerkungen:
. etwa 94 m² Wohnfläche (inkl. 50% von Terrasse)
. LEICHT-Einbauküche mit Geräten von Miele & Siemens
. Fast ausschließlich bodentiefe Fenster, teilweise doppelflügelig
. 2,75 m Deckenhöhe im Wohnbereich
. 37 m² Dachterrasse mit...
Preisinformation
1 Garagenstellplatz, Kaufpreis: 25.000,00 EUR
Weitere Informationen
Sonstiges
Heizungsart: Fußbodenheizung
Energieträger: Gas
Der Kaufpreis beträgt 924.000 Euro, zzgl. 25.000 Euro für die eigene Garage im Haus.
Der Käufer muss keine Provision zahlen.
Das Hausgeld beträgt 522€ mtl. und beinhaltet u.a. die Zuführung der Rücklagen.
Wie geht es nach Ihrer Anfrage...
Dokumente
Anbieter der Immobilie
ohne-makler.net - Immobilien selbst vermarkten
Humboldtstr. 25 A, 21509 Glinde
Privat von Astrid Honkanen
Dein Ansprechpartner
Kontaktiere den Anbieter schriftlich, es ist keine Telefonnummer hinterlegt.
Online-ID: 2m93v5l
Referenznummer: 412338
Finde Angebote wie dieses
Hier geht es zu unserem Impressum, den Allgemeinen Geschäftsbedingungen, den Hinweisen zum Datenschutz und nutzungsbasierter Online-Werbung.