FALC Immobilien Nürnberg-Süd (Cono Manzione)

Herr Cono Manzione

Doppeltes Wohnungsinvestment: 1-Zimmer frei + 2-Zimmer vermietet - Das ideale Kapitalanlage-Paket

€ 239.000
Kaufpreis
75 m²
Wohnfläche ca.
3
Zimmer

Der Anbieter dieses Objekts hat gegenüber der AVIV Germany GmbH als Betreiber dieses Online-Marktplatzes erklärt, nicht als Unternehmer im Sinne des § 1 KSchG zu handeln. Die im Verbraucherschutzrecht der Union verankerten Verbraucherrechte (insbesondere Informationspflichten und Rücktritts- bzw. Widerrufsrechte) finden auf den Vertrag zwischen dem Anbieter des Objekts und Ihnen (dem Interessenten) keine Anwendung.

Gewerblicher Anbieter

Der Anbieter dieses Objekts hat gegenüber der AVIV Germany GmbH als Betreiber dieses Online-Marktplatzes erklärt, als Unternehmer im Sinne des § 1 KSchG zu handeln.

AdresseStraße nicht freigegeben
90763 Fürth 
(Südstadt)
Auf Karte ansehen

Preise & Kosten

Kaufpreis € 239.000 Hausgeld € 365

Provision für Käufer

3,57 % inkl. MwSt.

Lage

Diese Immobilie befindet sich in einem lebhaften Wohnviertel von Fürth, das sowohl durch seine zentrale Lage als auch durch die Vielfalt an verfügbaren Annehmlichkeiten überzeugt. Die ruhige Straße strahlt eine einladende Atmosphäre aus und ist von historischen Gebäuden umgeben, die dem Viertel seinen charmanten Charakter...

Mehr anzeigen

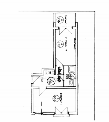
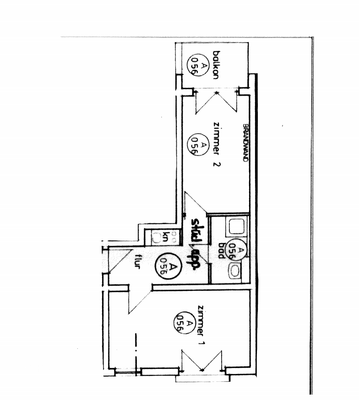
Die Wohnung

Wohnungslage

3. Geschoss

Derzeitige Nutzung

vermietet

  • Bad mit Dusche
  • Balkon
  • barrierefrei, als Ferienimmobilie geeignet
  • Böden: Fliesenboden, Parkett
  • Zustand: gepflegt
  • Weitere Räume: Kelleranteil, Abstellraum

Wohnanlage

  • Baujahr: 1995
  • Personenaufzug
  • 2 Stellplätze: Tiefgarage

Energie & Heizung

A+
A
B
C
D
E
F
G
H
0 25 50 75 100 125 150 175 200 225 250 +

Energieausweistyp

Verbrauchsausweis

Gebäudetyp

Wohngebäude

Wesentliche Energieträger

Gas

Gültigkeit

22.02.2018 bis 21.02.2028

Effizienzklasse

C

Endenergieverbrauch

91,40 kWh/(m²·a)

Weitere Energiedaten

Energieträger

Gas

Heizungsart

Zentralheizung

Details

Objektbeschreibung

Investment-Paket: 1-Zimmer-Wohnung (frei) + 2-Zimmer-Wohnung (vermietet) - attraktives Doppelangebot für Anleger
Beschreibung - Zwei Wohnungen, ein starkes Investment

Zum Verkauf steht ein attraktives Immobilienpaket, bestehend aus einer freien 1-Zimmer-Wohnung mit Balkon sowie einer vermieteten 2-Zimmer-Wohnung...

Mehr anzeigen

Ausstattung

Ausstattung im Überblick
Wohnfläche: ca. 40,57?m²

Baujahr: 1995 - gepflegtes Mehrfamilienhaus mit zeitloser Architektur

Räumlichkeiten: 2 gut geschnittene, helle Zimmer mit durchdachter Aufteilung

Bodenbeläge: Wohnbereich mit modernem, pflegeleichtem Laminatboden

Badezimmer: Zeitlos gefliest...

Mehr anzeigen

Preisinformation

2 Tiefgaragenstellplätze

Weitere Informationen

Sonstiges
Falls Sie Wert auf eine ruhige Lage, eine durchdachte Raumaufteilung und ein gehobenes Wohnumfeld legen, könnte dieses Objekt genau das Richtige für Sie sein. Wir bieten Ihnen eine kostenlose 24/7-Hotline unter der Rufnummer 0800-6460646, über die Sie uns jederzeit erreichen können. Wenn Sie Interesse an der...

Mehr anzeigen

Anbieter der Immobilie

Partner

FALC Immobilien Nürnberg-Süd (Cono Manzione)

im Durchschnitt  3,00  Sterne
(bei 13 Bewertungen)

Laufamholzstraße 399, 90482 Nürnberg

user

Herr Cono Manzione

Dein Ansprechpartner

Anbieter-Website Anbieter-Profil Anbieter-Impressum

Online-ID: 2m9435q

Referenznummer: FALC-CoMa-78832

Finde Angebote wie dieses

imageimageimage

Hier geht es zu unserem Impressum, den Allgemeinen Geschäftsbedingungen, den Hinweisen zum Datenschutz und nutzungsbasierter Online-Werbung.