
ÖRAG Immobilien Vermittlung GmbH
Frau Lara Steinbacher
004 ···
Nr. anzeigenPreise & Kosten
inkl. Betriebskosten
Kaution
20.085,00
Warum sehe ich diese Anzeige? – Du siehst diese Anzeige basierend auf Ihrer Navigation auf unserer Website und den Suchkriterien, die du verwendet hast.
Lage
Die Liegenschaft befindet sich in ruhiger, grüner Wohnlage im begehrten 19. Bezirk Döbling. Eingebettet zwischen Weinbergen und Naherholungsgebieten bietet die Umgebung hohe Lebensqualität mit idealer Balance zwischen Natur und Stadt. Einkaufsmöglichkeiten, Schulen, Ärzte und Freizeitangebote sind in wenigen Minuten...
Die Wohnung
Wohnungslage
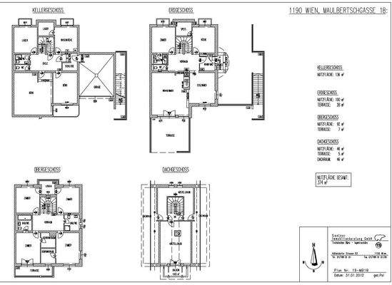
Erdgeschoss
Bezug
sofort
Wohnanlage
Energie & Heizung
Warum sehe ich diese Anzeige? – Du siehst diese Anzeige basierend auf Ihrer Navigation auf unserer Website und den Suchkriterien, die du verwendet hast.
Heizwärmebedarf (HWB)
77,20 kWh/(m²·a)
Gesamtenergieeffizienz (fGEE)
1,36
Weitere Energiedaten
Heizungsart
Etagenheizung
Details
Objektbeschreibung
Kurzbeschreibung
Genießen Sie ruhiges Wohnen in einer der begehrtesten Lagen Wiens, umgeben von Weinbergen und Natur.
Ein Zuhause mit höchster Lebensqualität und perfekter Anbindung an die Stadt.
Objekt
Genießen Sie ruhiges Wohnen in einer der begehrtesten Lagen Wiens, umgeben von Weinbergen und Natur.
Ein...
Ausstattung
Die Nebenkosten (Strom, Heizung und Wasser) sind verbrauchsabhängig und fallen zusätzlich an.
Das Haus wird auf 5 Jahre befristet vermietet. Kündigungsverzicht 1 Jahr.
Preisinformation
Nettokaltmiete: 5.450,36 EUR
Weitere Informationen
Sonstiges
Wir sind eine Tochtergesellschaft der ÖRAG-Österreichische Realitäten AG, Wien, genannt ÖRAG, und es besteht daher unter Umständen ein sonstiges wirtschaftliches Naheverhältnis im Sinne des Maklergesetzes zur ÖRAG und ihren anderen Tochtergesellschaften in Österreich. Das Naheverhältnis zur ÖRAG ergibt sich zB...
Anbieter der Immobilie
Online-ID: 2m94j57
Referenznummer: 109258257
Finde Angebote wie dieses
Hier geht es zu unserem Impressum, den Allgemeinen Geschäftsbedingungen, den Hinweisen zum Datenschutz und nutzungsbasierter Online-Werbung.