
ENGEL & VÖLKERS EuV Immo GmbH
Engel & Völkers Schruns
+43 ···
Nr. anzeigenPreise & Kosten
Provision für Käufer
3.0 % zzgl. gesetzl. MwSt. Weitere Informationen siehe Provisionshinweis.
Lage
Das Reihenendhaus Haus A am Steinwandweg 8 in Vandans befindet sich in einer sonnigen, ruhigen Aussichtslage am Ortsrand und bietet damit ideale Voraussetzungen für familiengerechtes Wohnen. Die kleine Anliegerstraße ist nahezu frei von Durchgangsverkehr und schafft ein sicheres Umfeld für Kinder. Gleichzeitig sind das...
Das Haus
Kategorie
Reihenendhaus
Baujahr
2025
Bezug
nach Absprache
Energie & Heizung
Warum sehe ich diese Anzeige? – Du siehst diese Anzeige basierend auf Ihrer Navigation auf unserer Website und den Suchkriterien, die du verwendet hast.
Heizwärmebedarf (HWB)
43,00 kWh/(m²·a)
Gesamtenergieeffizienz (fGEE)
0,58
Weitere Energiedaten
Heizungsart
Fußbodenheizung, Luft-/Wasser-Wärmepumpe
Details
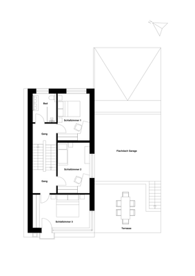
Objektbeschreibung
Am Steinwandweg 8 in Vandans entsteht eine moderne Reihenhausanlage in attraktiver Aussichtslage. Das angebotene Reihenendhaus "Haus A" überzeugt mit hochwertiger Bauweise, durchdachtem Grundriss und großzügigen Außenflächen - ideal für Familien. Auf rund 115 m² Wohnfläche verteilt sich das Haus auf einen lichtdurchfluteten...
Ausstattung
Bergpanorama
Weitere Informationen
Provisionshinweis
3.0 % zzgl. gesetzl. MwSt.
Der Makler-Vertrag mit uns und/oder unserem Beauftragten kommt durch schriftliche Vereinbarung oder durch die Inanspruchnahme unserer Maklertätigkeit auf der Basis des Objekt-Exposés und seiner Bedingungen zustande. Die Käufercourtage in Höhe von 3 % plus 20% MwSt. (=3,6%) in...
Anbieter der Immobilie
Online-ID: 2m97d5s
Referenznummer: I-046BDA-W-046BDA
Finde Angebote wie dieses
Günstige Immobilienfinanzierung einfach online berechnen
Persönliches Angebot berechnenWarum sehe ich diese Werbung? – Du siehst diese Werbung basierend auf Deiner Navigation auf unserer Website und der von Dir verwendeten Suchkriterien.
Diese Werbung wird bezahlt von durchblicker
Werbung melden
Hier geht es zu unserem Impressum, den Allgemeinen Geschäftsbedingungen, den Hinweisen zum Datenschutz und nutzungsbasierter Online-Werbung.