
McMakler GmbH
Ihr McMakler Team
080 ···
Nr. anzeigenPreise & Kosten
Provision für Käufer
Die Provision i.H.v. 3,57 % inkl. MwSt. ist mit Kaufvertragsbeurkundung fällig, sofern der Verkaufspreis über 83.000,00 € liegt.
Liegt der Verkaufspreis dagegen bei/unter 83. Weitere Informationen siehe Provisionshinweis.
Lage
Lage: Die naturnahe Lage bietet eine grüne Umgebung mit vielen Naherholungsmöglichkeiten in Walsrode / OT Düshorn
Bildung und Betreuung: Nur ca. 800 m zu Kindergarten und Schule - ideale Verhältnisse für Ihre Familie
Nahversorgung: Rund 6 km zu Anlaufstellen wie Supermärkten, Apotheken, Post- und...
Das Haus
Kategorie
Einfamilienhaus
Baujahr
1978
Bezug
nach Absprache
Energie & Heizung
Warum sehe ich diese Anzeige? – Du siehst diese Anzeige basierend auf Ihrer Navigation auf unserer Website und den Suchkriterien, die du verwendet hast.
Energieausweistyp
Bedarfsausweis
Gebäudetyp
Wohngebäude
Baujahr laut Energieausweis
1978
Wesentliche Energieträger
Gas
Effizienzklasse
F
Endenergiebedarf
199,50 kWh/(m²·a)
Weitere Energiedaten
Energieträger
Gas
Details
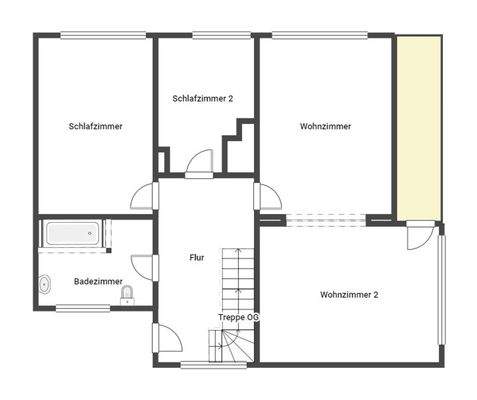
Objektbeschreibung
Objektnr: 1063008
Suchen Sie nicht länger nach dem perfekten Zuhause: Für all jene, die Zeit im Freien in ihren Alltag integrieren möchten, eignet sich die hier angebotene Immobilie. Die naturnahe Lage bietet Ihnen eine ruhige und friedliche Umgebung sowie eine Vielzahl an Naherholungsmöglichkeiten. Dies spricht vor...
Ausstattung
+ In familienfreundlicher Umgebung in naturnaher Lage von Walsrode, ideal als Ihr neues Zuhause
+ Tolle Außenbereiche: Ca. 650 m² Außenbereiche mit Süd-Garten inkl. Terrasse, Loggia und Balkon laden zum Verweilen ein
+ Die Immobilie präsentiert sich in einem gepflegten Zustand - zuletzt wurde das Haus 2022...
Weitere Informationen
Provisionshinweis
Die Provision i.H.v. 3,57 % inkl. MwSt. ist mit Kaufvertragsbeurkundung fällig, sofern der Verkaufspreis über 83.000,00 € liegt.
Liegt der Verkaufspreis dagegen bei/unter 83.000,00 €, ist die fest vereinbarte Mindestprovision i.H.v. mind. 5.950,00 € inkl. MwSt. mit Kaufvertragsbeurkundung fällig...
Anbieter der Immobilie
McMakler GmbH
Am Postbahnhof 17, 10243 Berlin
Online-ID: 2m97e5u
Referenznummer: 7c5c20748c
Finde Angebote wie dieses
Hier geht es zu unserem Impressum, den Allgemeinen Geschäftsbedingungen, den Hinweisen zum Datenschutz und nutzungsbasierter Online-Werbung.