
Debeka Bausparkasse AG
Herr Frank Kampmann
Kontaktiere den Anbieter schriftlich, es ist keine Telefonnummer hinterlegt.
Preise & Kosten
Provision für Käufer
2,975% inkl. MwSt.
Lage
Geographische Lage
. Gartenstadt ist ein Stadtteil im südlichen Bereich von Schwerin.
. Der Stadtteil grenzt unter anderem an die Ludwigsluster Chaussee.
. Vom Stadtzentrum Schwerins ist die Gartenstadt etwa 5 Kilometer entfernt.
Charakter & Nutzung
. Die Gartenstadt ist geprägt von einer...
Die Wohnung
Wohnungslage
Erdgeschoss
Bezug
ab sofort, vermietet
Derzeitige Nutzung
vermietet
Wohnanlage
Energie & Heizung
Warum sehe ich diese Anzeige? – Du siehst diese Anzeige basierend auf Ihrer Navigation auf unserer Website und den Suchkriterien, die du verwendet hast.
Energieausweistyp
Verbrauchsausweis
Gebäudetyp
Wohngebäude
Gültigkeit
08.10.2020 bis 07.10.2030
Effizienzklasse
B
Endenergieverbrauch
50,40 kWh/(m²·a)
Weitere Energiedaten
Energieträger
Fernwärme
Details
Objektbeschreibung
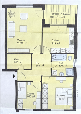
Beim Betreten der Wohnung öffnet sich ein freundlich gestalteter Flur, der als zentraler Verteiler alle Räume harmonisch miteinander verbindet. Gleich rechts befindet sich ein helles Zimmer mit rund 9 m² - ideal als Kinderzimmer, Homeoffice oder gemütlicher Rückzugsort.
Links vom Eingang bietet eine großzügige...
Ausstattung
- Stellplatz
- 2. OG (Dachgeschoss, Flachdach)
- Vollbad
- 8m² Balkon
- Abstellraum
Weitere Informationen
Sonstiges
Die genannten Informationen beruhen auf den Angaben des Verkäufers. Für die Richtigkeit und Vollständigkeit der Angaben wird keine Gewähr oder Haftung übernommen.
Seit dem 25. Mai 2018 gilt in Deutschland die EU-Datenschutz-Grundverordnung (DS-GVO). Sie regelt, wie private Unternehmen und öffentliche...
Anbieter der Immobilie

Debeka Bausparkasse AG
Debeka-Platz 2, 56073 Koblenz
Herr Frank Kampmann
Dein Ansprechpartner
Kontaktiere den Anbieter schriftlich, es ist keine Telefonnummer hinterlegt.
Online-ID: 2m97h5n
Referenznummer: 1009224#4Fd7ty
Finde Angebote wie dieses
Hier geht es zu unserem Impressum, den Allgemeinen Geschäftsbedingungen, den Hinweisen zum Datenschutz und nutzungsbasierter Online-Werbung.