
FINEST PROPERTY VERWALTUNGS GMBH
Herr Marcus Egger
004 ···
Nr. anzeigenPreise & Kosten
Warum sehe ich diese Anzeige? – Du siehst diese Anzeige basierend auf Ihrer Navigation auf unserer Website und den Suchkriterien, die du verwendet hast.
Lage
Das Objekt liegt ruhig und naturnah am Maxhofweg - in einem gepflegten, familienfreundlichen Wohngebiet.
Einkaufsmöglichkeiten, Schulen, Kindergärten, Ärzte und Restaurants befinden sich in unmittelbarer Nähe.
Der Forstenrieder Park mit seinen weitläufigen Spazier- und
Radwegen bietet Erholung direkt vor der...
Die Wohnung
Bezug
März/April 2026
Wohnanlage
Energie & Heizung
Warum sehe ich diese Anzeige? – Du siehst diese Anzeige basierend auf Ihrer Navigation auf unserer Website und den Suchkriterien, die du verwendet hast.
Energieausweistyp
Verbrauchsausweis
Gebäudetyp
Wohngebäude
Baujahr laut Energieausweis
2008
Wesentliche Energieträger
GAS
Gültigkeit
bis 29.07.2030
Effizienzklasse
D
Endenergieverbrauch
101,70 kWh/(m²·a)
Weitere Energiedaten
Energieträger
Gas
Heizungsart
Zentralheizung
Details
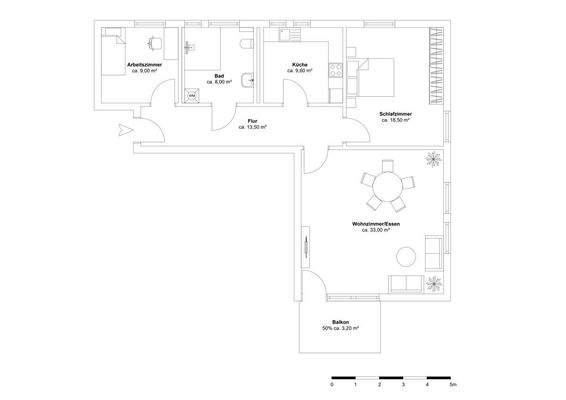
Objektbeschreibung
Diese lichtdurchflutete 3-Zimmer-Wohnung mit ca. 95 m² Wohnfläche verbindet Wohnkomfort, Geborgenheit und Lebensqualität auf besondere Weise. Der moderne Grundriss, extrabreite Türen und stufenlose Zugänge schaffen ein Gefühl von Freiheit und Offenheit - ideal für ein selbstbestimmtes Leben ohne Kompromisse.
Der...
Weitere Informationen
Stichworte
Nutzfläche: 4,70 m², Anzahl der Schlafzimmer: 2, Anzahl der Badezimmer: 1, Anzahl Balkone: 1, 1 Etagen
Anbieter der Immobilie
FINEST PROPERTY VERWALTUNGS GMBH
Augustenstraße 39, 80333 München, Deutschland
Online-ID: 2m99a5z
Referenznummer: FP-260145-M
Finde Angebote wie dieses
Hier geht es zu unserem Impressum, den Allgemeinen Geschäftsbedingungen, den Hinweisen zum Datenschutz und nutzungsbasierter Online-Werbung.