
ohne-makler.net - Immobilien selbst vermarkten
Privat von Stefan Mordstein
Kontaktiere den Anbieter schriftlich, es ist keine Telefonnummer hinterlegt.
Preise & Kosten
Provision für Käufer
provisionsfrei
Lage
Lage: Die Wohnung liegt in Dornbirn-Hatlerdorf, einer bevorzugten Wohngegend, die ein angenehmes Stadtleben mit einer eher ruhigen Umgebung vereint. Die Autobahnanbindung Dornbirn-Süd ist in ca. 5 Minuten sehr gut erreichbar. Einkaufsmöglichkeiten, öffentliche Verkehrsmittel, Schulen und Freizeitangebote sind bequem...
Die Wohnung
Bezug
nach Absprache
Wohnanlage
Energie & Heizung
Warum sehe ich diese Anzeige? – Du siehst diese Anzeige basierend auf Ihrer Navigation auf unserer Website und den Suchkriterien, die du verwendet hast.
Heizwärmebedarf (HWB)
119,00 kWh/(m²·a)
Weitere Energiedaten
Energieträger
Fernwärme
Heizungsart
Zentralheizung
Details
Objektbeschreibung
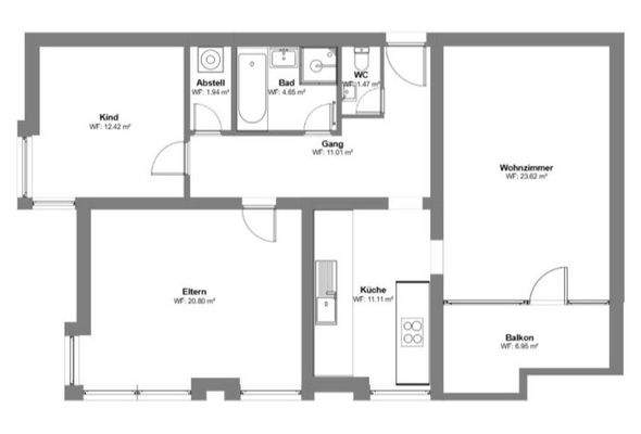
Diese gepflegte 3-Zimmer-Eigentumswohnung im 3. Obergeschoss eines Mehrparteienhauses verbindet modernes Wohnen mit einer angenehmen und stadtnahen Lage in Dornbirn-Hatlerdorf. Mit 87 m² Wohnfläche, lichtdurchfluteten Räumen und einer unverbaubaren Aussicht auf den Karren und die Karrenbahn bietet diese Wohnung ein Zuhause...
Ausstattung
Balkon, Keller, Fahrstuhl, Vollbad, Duschbad, Einbauküche, Parkett, Fliesen
Bemerkungen:
Besondere Highlights:
Unverbaubarer Ausblick: Traumhafte Aussicht auf den Karren
Teilweise saniert und modernisiert: Bad, WC und Küche komplett erneuert; alle weiteren Räume in sehr gutem und gepflegtem Zustand. Die...
Preisinformation
1 Carportplatz
Weitere Informationen
Sonstiges
Heizungsart: Zentralheizung
Energieträger: Fernwärme
Interessiert? Wenn diese Wohnung Ihr Interesse geweckt hat, können Sie sich gerne direkt bei mir melden, um mehr Informationen zu erhalten oder einen Besichtigungstermin zu vereinbaren. Ich freue mich darauf, von Ihnen zu...
Dokumente
Anbieter der Immobilie
Privat von Stefan Mordstein
Dein Ansprechpartner
Kontaktiere den Anbieter schriftlich, es ist keine Telefonnummer hinterlegt.
Online-ID: 2m9a65j
Referenznummer: 330858
Finde Angebote wie dieses
Günstige Immobilienfinanzierung einfach online berechnen
Persönliches Angebot berechnenWarum sehe ich diese Werbung? – Du siehst diese Werbung basierend auf Deiner Navigation auf unserer Website und der von Dir verwendeten Suchkriterien.
Diese Werbung wird bezahlt von durchblicker
Werbung melden
Hier geht es zu unserem Impressum, den Allgemeinen Geschäftsbedingungen, den Hinweisen zum Datenschutz und nutzungsbasierter Online-Werbung.