
M&D Immobilien GmbH & Co. KG
Herr Dorn
095 ···
Nr. anzeigenPreise & Kosten
Provision für Käufer
3,57 % inkl. MwSt.
Lage
Die Bürofläche befindet sich in Bamberg und überzeugt durch ihre repräsentative und werbewirksame Lage. In der näheren Umgebung befinden sich verschiedene Bekleidungsgeschäfte sowie zahlreiche Restaurants und Cafés. Die Anbindung an öffentliche Verkehrsmittel ist dank der zentralen Lage...
Büro-/Praxisfläche
Baujahr
1990
Derzeitige Nutzung
vermietet
Energie & Heizung
Warum sehe ich diese Anzeige? – Du siehst diese Anzeige basierend auf Ihrer Navigation auf unserer Website und den Suchkriterien, die du verwendet hast.
Energieausweistyp
Verbrauchsausweis
Gebäudetyp
Wohngebäude
Baujahr laut Energieausweis
1994
Wesentliche Energieträger
Gas
Gültigkeit
01.04.2022 bis 01.04.2030
Effizienzklasse
E
Endenergieverbrauch
135,00 kWh/(m²·a) - Warmwasser enthalten
Weitere Energiedaten
Energieträger
Blockheizkraftwerk, Gas
Details
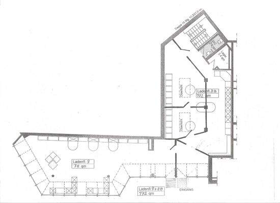
Objektbeschreibung
Die angebotene Gewerbefläche befindet sich in absoluter Zentrumslage von Bamberg und stellt eine attraktive Kapitalanlage mit langfristig gesicherten Mieteinnahmen dar. Die Einheit umfasst eine Gesamtnutzfläche von ca. 180 m² und ist seit vielen Jahren erfolgreich an eine etablierte Einzelmieterin vermietet.
Die Fläche...
Ausstattung
Laden wird mit Blockheizkraftwerk beheizt. Elektrische Klimaanlage vorhanden.
Preisinformation
Soll-Mieteinnahmen pro Jahr: 17.040,00 EUR
Ist-Mieteinnahmen pro Jahr: 17.040,00 EUR
Weitere Informationen
Sonstiges
Sonstiges
Bitte teilen Sie uns bei Anfragen immer Ihre kompletten Kontaktdaten mit.
Nur so können wir gezielt mit Ihnen in Kontakt bleiben und alle notwendigen Objektunterlagen zur Verfügung stellen. Die hier eingestellten Flächendefinitionen sind mit größter Sorgfalt recherchiert, erheben jedoch...
Dokumente
Anbieter der Immobilie

M&D Immobilien GmbH & Co. KG
Theatergassen 4, 96047 Bamberg
Online-ID: 2m9cy5x
Referenznummer: 0198
Finde Angebote wie dieses
Hier geht es zu unserem Impressum, den Allgemeinen Geschäftsbedingungen, den Hinweisen zum Datenschutz und nutzungsbasierter Online-Werbung.