

EDE INVEST GmbH & Co. KG
Herr Marc Reininger
+49 ···
Nr. anzeigenPreise & Kosten
Provision für Käufer
PROVISIONSFREI inkl. MwSt.
Lage
Im begehrten Münchner Stadtteil Solln vereinen sich Tradition und Moderne zu einer exquisiten Wohnkulisse. Die Immobilien in Solln präsentieren sich in einer reizvollen Bandbreite, von historischen Villen bis hin zu modernen Neubauten.
Die zentrale Lage von Solln wird durch eine ausgezeichnete Infrastruktur ergänzt...
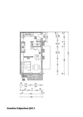
Das Haus
Baujahr
2026
Bezug
Spätherbst 2026
Energie & Heizung
Warum sehe ich diese Anzeige? – Du siehst diese Anzeige basierend auf Ihrer Navigation auf unserer Website und den Suchkriterien, die du verwendet hast.
Energieausweistyp
Verbrauchsausweis
Gebäudetyp
Wohngebäude
Baujahr laut Energieausweis
2025
Gültigkeit
bis 01.12.2034
Effizienzklasse
A
Endenergieverbrauch
49,90 kWh/(m²·a)
Weitere Energiedaten
Heizungsart
Fußbodenheizung, Luft-/Wasser-Wärmepumpe
Details
Objektbeschreibung
Willkommen in Ihrem neuen Zuhause!
Inmitten von Solln entstehen exklusive Doppelhaushälften, die höchsten Ansprüchen an modernes Wohnen gerecht werden. Hier verschmelzen zeitlose Eleganz mit komfortablen Wohnräumen und schaffen eine einzigartige Wohlfühlatmosphäre.
Architektur und Design
Die Architektur der...
Ausstattung
- Realgeteilt
- Energierwert A
- In Massivbauweise
- Ziegelmauerwerk mit 36,5 cm Außenwände
- Innenwände mit 17,50 cm und 11,5 cm Ziegelmauerwerk, bzw. Trockenbauwände
- Dreifach-wärmeschutzverglaste Fenster
- Zum Teil bodentiefe Fenster im EG & OG
- Lichterker im...
Weitere Informationen
Sonstiges
Alle in diesem Exposé verwendeten Angaben beruhen auf Informationen von Dritten (z.B. Eigentümer, Hausverwaltung, etc.) und daher freibleibend und ohne jegliche Gewähr. Zahlenangaben sind immer als ca-Angaben zu verstehen. Irrtum, Änderungen, Zwischenverkauf oder Zwischenvermietung bleiben vorbehalten. Die...
Anbieter der Immobilie
EDE INVEST GmbH & Co. KG
Bavariaring 18, 80336 München

Online-ID: 2m9dg5d
Referenznummer: 5937_1
Finde Angebote wie dieses
Hier geht es zu unserem Impressum, den Allgemeinen Geschäftsbedingungen, den Hinweisen zum Datenschutz und nutzungsbasierter Online-Werbung.