
Nursey Immobilien
Frau Birte Grabowsky
004 ···
Nr. anzeigenPreise & Kosten
Provision für Käufer
Käufer und Verkäufer je 3,00 % des erzielten Kaufpreises inkl. MwSt.
Lage
Die Immobilie befindet sich in der Gemeinde Zarpen im Landkreis Stormarn.
Zarpen hat ca. 1.500 Einwohner und gehört neben Hamberge zu den größeren Dorfschaften Nordstormarns.
Zarpen bietet insbesondere für junge Familien Anreize durch zwei Kindertagesstätten und einen hohen Freizeitwert im Grünen sowie...
Das Haus
Kategorie
Einfamilienhaus
Baujahr
1971
Bezug
sofort
Energie & Heizung
Warum sehe ich diese Anzeige? – Du siehst diese Anzeige basierend auf Ihrer Navigation auf unserer Website und den Suchkriterien, die du verwendet hast.
Energieausweistyp
Bedarfsausweis
Gebäudetyp
Wohngebäude
Baujahr laut Energieausweis
1971
Wesentliche Energieträger
OEL
Gültigkeit
bis 17.12.2035
Effizienzklasse
F
Endenergiebedarf
168,40 kWh/(m²·a)
Weitere Energiedaten
Energieträger
Öl
Details
Objektbeschreibung
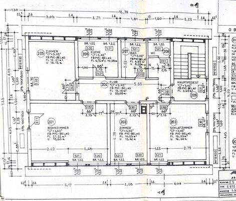
Bei der angebotenen Immobilie handelt es sich um ein Zweifamilienhaus mit Vollkeller und Garage auf einem pflegeleicht angelegten Grundstück in der Gemeinde Zarpen.
Das Haus ist massiv erbaut und verfügt über zwei autark nutzbare Wohnungen sowie eine Ausbaureserve auf dem Spitzboden. Im Vollkeller der Immobilie ist...
Ausstattung
Eckdaten und Ausstattungsmerkmale / Aufteilung / Hinweise
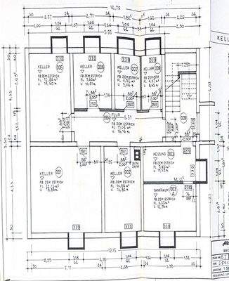
Kellergeschoss:
Heizung 003 ca 7 qm
Tankraum 003 ca 9 qm
Keller 001 ca. 22 qm
Keller 002 ca. 11 qm
Flur 004 ca. 11 qm
Keller 005 ca. 13 qm
Keller 006...
Preisinformation
1 Garagenstellplatz
Weitere Informationen
Sonstiges
Es liegt ein Energiebedarfsausweis vor.
Dieser ist gültig bis 17.12.2035.
Endenergiebedarf beträgt 168.40 kwh/(m²*a).
Wesentlicher Energieträger der Heizung ist Öl.
Das Baujahr des Objekts lt. Energieausweis ist 1971.
Die Energieeffizienzklasse ist F.
Hinweis:
Dieses Angebot ist...
Dokumente
Anbieter der Immobilie

Nursey Immobilien
Paul-von-Schoenaich-Straße 21, 23858 Reinfeld
Online-ID: 2m9el5t
Referenznummer: 518
Finde Angebote wie dieses
Hier geht es zu unserem Impressum, den Allgemeinen Geschäftsbedingungen, den Hinweisen zum Datenschutz und nutzungsbasierter Online-Werbung.