
Immobilien Treffpunkt GmbH
Herr Ralph Grasdanner
004 ···
Nr. anzeigenPreise & Kosten
Kaution
3 Nettokaltmieten
Provision für Mieter
3,57 Nettokaltmieten inkl. MwSt.
Warum sehe ich diese Anzeige? – Du siehst diese Anzeige basierend auf Ihrer Navigation auf unserer Website und den Suchkriterien, die du verwendet hast.
Lage
Das ca. 130.000 m² große Gewerbegebiet Schwaig ist bekannt als ein qualitativ hervorragend entwickeltes Gewerbegebiet mit unterschiedlichen Unternehmen und ist ein Paradebeispiel für eine Wirtschaftsförderungsmaßnahme der Stadt. Durch die Nahe Anbindung zur Äußeren Münchener Straße, Panorama-Schwaig, der nahegelegenen...
Die Industriefläche
Kategorie
Lagerhalle
Baujahr
2001
Bezug
01.02.2026
Details
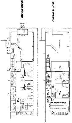
Objektbeschreibung
Bei diesem Angebot handelt es sich um ein großzügiges Gewerbeobjekt mit einer Gesamtfläche von ca. 1.415 m², bestehend aus einer Lager- bzw. Produktionshalle sowie angrenzenden Büro- und Verwaltungsräumen auf zwei Etagen.
Die Lager-/Produktionshalle verfügt über eine Grundfläche von ca. 1.056 m². Zusätzlich ist ein...
Ausstattung
- ca. 1.056 m² Lagerhalle EG - inkl. Lagersystem auf drei Ebenen
- ca. 359 m² Büro-, Ausstellungs- und Nebenräume EG + OG
- ca. 11 m² Anschluss- und Heizungsraum
Sonstige Maße:
- Hallenhöhe: ca. 7,88 m
- Hallenhöhe Unterzug: ca. 7,36 m
- Hallenhöhe Torbereich: ca. 4,70 m
- Torhöhe: ca. 2,96...
Weitere Informationen
Sonstiges
Der Bebauungsplan um das Objekt untersagt ausdrücklich folgende Nutzungsarten:
- Wohnen
- Einzelhandelsbetriebe für den periodischen, insbesondere den täglichen Bedarf (z.B. Lebensmittelmärkte), sowie großflächige Einzelhandelsunternehmen)
- Nahrungs- und Genussmittel
- Lederwaren und Schuhe sowie...
Anbieter der Immobilie
Online-ID: 2m9fh58
Referenznummer: 7009
Finde Angebote wie dieses
Hier geht es zu unserem Impressum, den Allgemeinen Geschäftsbedingungen, den Hinweisen zum Datenschutz und nutzungsbasierter Online-Werbung.