
McMakler GmbH
Ihr McMakler Team
080 ···
Nr. anzeigenPreise & Kosten
Provision für Käufer
Die Provision i.H.v. 3,57 % inkl. MwSt. ist mit Kaufvertragsbeurkundung fällig, sofern der Verkaufspreis über 83.000,00 € liegt.
Liegt der Verkaufspreis dagegen bei/unter 83. Weitere Informationen siehe Provisionshinweis.
Lage
Lage: Attraktive Lage in Striegistal mit guten Voraussetzungen für Eigennutzer
Bildung und Betreuung: Bildung und Betreuung vor Ort: ein Kindergarten im Umkreis von max. 6 km
Nahversorgung: Verschiedene Anlaufstellen wie Supermarkt, Apotheke, Postfiliale und Bankfiliale in max. 6 km
Anbindung: Nächster Bahnhof und...
Das Renditeobjekt
Baujahr
1935
Bezug
nach Absprache
Energie & Heizung
Warum sehe ich diese Anzeige? – Du siehst diese Anzeige basierend auf Ihrer Navigation auf unserer Website und den Suchkriterien, die du verwendet hast.
Energieausweistyp
Bedarfsausweis
Gebäudetyp
Wohngebäude
Baujahr laut Energieausweis
1935
Wesentliche Energieträger
Gas,Pelletheizung
Effizienzklasse
H
Endenergiebedarf
252,30 kWh/(m²·a)
Weitere Energiedaten
Energieträger
Gas, Pellets
Heizungsart
Zentralheizung
Details
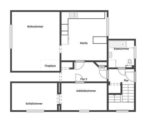
Objektbeschreibung
Objektnr: 1067910
Dieses charmante und vielseitig nutzbare Einfamilienhaus überzeugt durch seine großzügige Raumaufteilung, zahlreiche Nutzungsmöglichkeiten und das Potenzial zur Erweiterung. Ursprünglich als Zweifamilienhaus konzipiert, wird es aktuell als großes Einfamilienhaus genutzt - eine Rückführung in zwei...
Ausstattung
+ In zentraler Lage von Strigistal und gut angebunden, hervorragend als Ihr neues Zuhause
+ Die Immobilie präsentiert sich in einem renovierungsbedürftigen Zustand - die letzten Modernisierungsmaßnahmen erfolgten im Jahr 2019
+ Vielseitige Ausstattung des Hauses mit großzügigen Räumen inkl. Einbauküche sowie einem...
Weitere Informationen
Provisionshinweis
Die Provision i.H.v. 3,57 % inkl. MwSt. ist mit Kaufvertragsbeurkundung fällig, sofern der Verkaufspreis über 83.000,00 € liegt.
Liegt der Verkaufspreis dagegen bei/unter 83.000,00 €, ist die fest vereinbarte Mindestprovision i.H.v. mind. 5.950,00 € inkl. MwSt. mit Kaufvertragsbeurkundung fällig...
Anbieter der Immobilie
McMakler GmbH
Am Postbahnhof 17, 10243 Berlin
Online-ID: 2m9fr5u
Referenznummer: 1bb2bb54bb
Finde Angebote wie dieses
Hier geht es zu unserem Impressum, den Allgemeinen Geschäftsbedingungen, den Hinweisen zum Datenschutz und nutzungsbasierter Online-Werbung.