

KS Immobilien GmbH
Frau Christina Halchak
056 ···
Nr. anzeigenPreise & Kosten
Kaution
1.900,00
Warum sehe ich diese Anzeige? – Du siehst diese Anzeige basierend auf Ihrer Navigation auf unserer Website und den Suchkriterien, die du verwendet hast.
Lage
Die Wohnung befindet sich in einer ruhigen und dennoch zentralen Wohnlage von Fritzlar. Die historische Altstadt mit ihren charmanten Fachwerkhäusern, gemütlichen Cafés und vielfältigen Einkaufsmöglichkeiten ist in wenigen Minuten erreichbar. Schulen, Kindergärten sowie Ärzte und Apotheken liegen in unmittelbarer Nähe. Die...
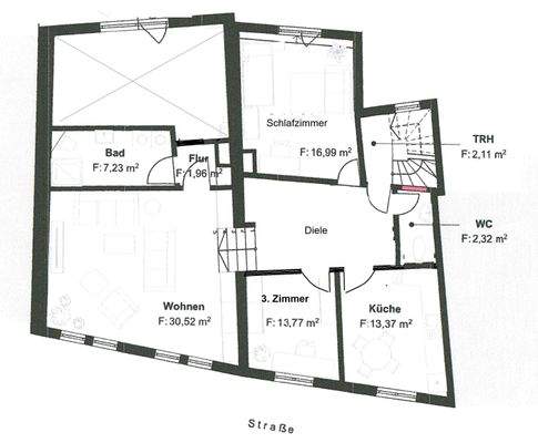
Die Wohnung
Wohnungslage
1. Geschoss
Bezug
sofort
Wohnanlage
Energie & Heizung
Warum sehe ich diese Anzeige? – Du siehst diese Anzeige basierend auf Ihrer Navigation auf unserer Website und den Suchkriterien, die du verwendet hast.
Energieausweistyp
Verbrauchsausweis
Gebäudetyp
Wohngebäude
Baujahr laut Energieausweis
1974
Wesentliche Energieträger
Öl
Gültigkeit
09.11.2025 bis 08.11.2035
Effizienzklasse
F
Endenergieverbrauch
178,86 kWh/(m²·a)
Weitere Energiedaten
Energieträger
Öl
Heizungsart
Zentralheizung
Details
Objektbeschreibung
Willkommen in dieser ansprechenden 3-KBZ-Wohnung in einem charmanten 3-Familienhaus in der malerischen Stadt Fritzlar. Die helle und freundliche Wohnung befindet sich im 1. Obergeschoss und bietet auf großzügigen ca. 100 m² Wohnfläche ein komfortables Zuhause. Im Jahr 2025 wurde die Wohnung renoviert, bei der moderne Akzente...
Ausstattung
Individuelle Ausstattungsmerkmale:
- 3-fach verglaste Fenster
- Garage
. die Wohnung wurde im Jahr 2025 komplett renoviert
. schöne, helle Einbauküche inkl. Elektrogeräte
. hochwertige Fliesen im Bad
. Gäste-WC
. Kunststofffenster mit Dreifachverglasung
. hochwertiger Vinylboden
...
Preisinformation
1 Garagenstellplatz, Miete: 80,00 EUR
Nettokaltmiete: 950,00 EUR
Weitere Informationen
Stichworte
Garage vorhanden, Anzahl der Schlafzimmer: 2, Anzahl der separaten WCs: 1, Bundesland: Hessen, nur Nichtraucher
Anbieter der Immobilie
KS Immobilien GmbH
Kölnische Str. 4, 34117 Kassel

Online-ID: 2m9h85c
Referenznummer: HKK-0342
Finde Angebote wie dieses
Hier geht es zu unserem Impressum, den Allgemeinen Geschäftsbedingungen, den Hinweisen zum Datenschutz und nutzungsbasierter Online-Werbung.