
Staudacher Immobilien GbR
Herr Manuel Staudacher
075 ···
Nr. anzeigenPreise & Kosten
Provision für Käufer
3,57% inkl. gesetzl. MwSt.
Lage
Die Immobilie befindet sich in einem ruhigen Ortsteil der Stadt Bad Wurzach im Landkreis Ravensburg. Die Lage zeichnet sich durch ihre naturnahe Umgebung und die herrliche Aussicht auf die sanfte Hügellandschaft aus. Hier genießt man ländliche Ruhe, frische Luft und ein hohes Maß an Lebensqualität - ideal für alle, die...
Das Haus
Kategorie
Bauernhaus
Baujahr
1850
Energie & Heizung
Warum sehe ich diese Anzeige? – Du siehst diese Anzeige basierend auf Ihrer Navigation auf unserer Website und den Suchkriterien, die du verwendet hast.
Energieausweistyp
Bedarfsausweis
Gebäudetyp
Wohngebäude
Wesentliche Energieträger
Öl
Gültigkeit
19.11.2025 bis 18.11.2035
Effizienzklasse
H
Endenergiebedarf
277,70 kWh/(m²·a)
Weitere Energiedaten
Energieträger
Öl
Details
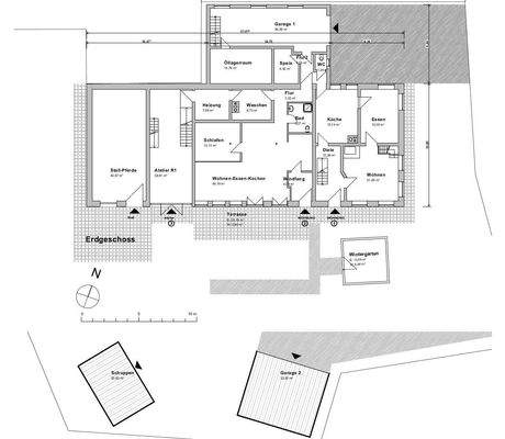
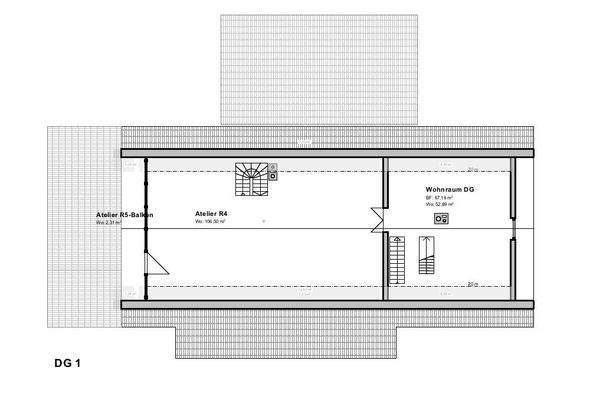
Objektbeschreibung
Dieses außergewöhnliche Anwesen in idyllischer Ortsrandlage besticht durch seinen großzügigen Grundriss, vielfältige Nutzungsmöglichkeiten und den unverwechselbaren ländlichen Charme. Auf einem weitläufigen Grundstück von 2.364 m² gelegen, bietet das Haus mit insgesamt vier Etagen und einer Wohnfläche von rund 318 m² ein...
Ausstattung
- Großzügiges Grundstück
- PV-Anlage (Übergabe der Anlage zum 01.01.2028)
- Ölheizung
- Ausreichende Parkmöglichkeiten
- Schön angelegter Garten mit Teich + Pavillon
- Balkon + Terrasse
Preisinformation
7 Stellplätze
Weitere Informationen
Sonstiges
Alle Angaben zum Objekt/Grundstück stammen vom Verkäufer oder von anderen Stellen und dienen einer ersten Information. Für die Richtigkeit und Vollständigkeit der Angaben wird keine Haftung übernommen. Sämtliche Fotos, Unterlagen und Texte dieser Anzeige und des Exposés sind Eigentum der Firma Staudacher...
Anbieter der Immobilie
Staudacher Immobilien GbR
Otterswanger Str. 5/3, 88630 Pfullendorf
Online-ID: 2m9hv5r
Referenznummer: 593
Finde Angebote wie dieses
Hier geht es zu unserem Impressum, den Allgemeinen Geschäftsbedingungen, den Hinweisen zum Datenschutz und nutzungsbasierter Online-Werbung.