Reichel & Schulte Immobilienmakler GmbH

Herr Nico Bündgen

Wohnen mit Flair - Stilvolle Wohnung in der Kölner Südstadt

€ 450.000
Kaufpreis
76 m²
Wohnfläche ca.
3
Zimmer

Der Anbieter dieses Objekts hat gegenüber der AVIV Germany GmbH als Betreiber dieses Online-Marktplatzes erklärt, nicht als Unternehmer im Sinne des § 1 KSchG zu handeln. Die im Verbraucherschutzrecht der Union verankerten Verbraucherrechte (insbesondere Informationspflichten und Rücktritts- bzw. Widerrufsrechte) finden auf den Vertrag zwischen dem Anbieter des Objekts und Ihnen (dem Interessenten) keine Anwendung.

Gewerblicher Anbieter

Der Anbieter dieses Objekts hat gegenüber der AVIV Germany GmbH als Betreiber dieses Online-Marktplatzes erklärt, als Unternehmer im Sinne des § 1 KSchG zu handeln.

AdresseStraße nicht freigegeben
50678 Köln 
(Neustadt-Süd)
Auf Karte ansehen

Preise & Kosten

Kaufpreis € 450.000

Provision für Käufer

2,975% inkl. MwSt

Lage

Der Ubierring, im lebendigen Stadtteil Neustadt-Süd von Köln gelegen, verbindet den belebten Chlodwigplatz mit dem S-Bahnhof Köln-Süd und zeichnet sich durch eine gelungene Mischung aus historischen Gründerzeitbauten und modernen Neubauten aus. Diese Kombination aus Charme und zeitgemäßer Architektur macht den Ubierring zu...

Mehr anzeigen

Wohnanlage

  • Baujahr: 1972

Details

Objektbeschreibung

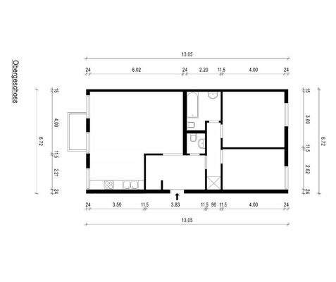
Diese gut geschnittene 3-Zimmer-Wohnung mit einer Fläche von 76 m² befindet sich im 5. Obergeschoss eines modernen Wohn- und Geschäftshauses im begehrten Severinsviertel. Ein großzügiger Aufzug sorgt für bequemen Zugang zu allen Etagen, wodurch auch die oberen Stockwerke mühelos erreicht werden können.

Der offene...

Mehr anzeigen

Ausstattung

? Baujahr 1972
? Aufzug
? Parkettboden in Wohnzimmer, Küche und Flur
? Hochwertiges Badezimmer
? Neue Fenster (2020)
? Südbalkon
? Waschraum (Keller)
? Kellerabteil

Weitere Informationen

Stichworte
Anzahl der Schlafzimmer: 1, Anzahl der Badezimmer: 1

Anbieter der Immobilie

Partner

Reichel & Schulte Immobilienmakler GmbH

im Durchschnitt  4,50  Sterne
(bei 7 Bewertungen)

Zollstockgürtel 63, 50969 Köln

user

Herr Nico Bündgen

Dein Ansprechpartner

Anbieter-Website Anbieter-Profil Anbieter-Impressum

Online-ID: 2m9hv5t

Referenznummer: 1805

Finde Angebote wie dieses

imageimageimage

Hier geht es zu unserem Impressum, den Allgemeinen Geschäftsbedingungen, den Hinweisen zum Datenschutz und nutzungsbasierter Online-Werbung.