

Goll Immobilien | Jürgen Goll GmbH
Herr Oliver Rot
015 ···
Nr. anzeigenPreise & Kosten
Provision für Käufer
2,00 % inkl. MWST
Lage
Die angebotene Immobilie befindet sich in einem beliebten Wohngebiet im Stadtteil Aachen-Brand, das sich durch seine ruhige, grüne Umgebung und gleichzeitig hervorragende Anbindung an die Innenstadt von Aachen auszeichnet. Brand ist bekannt für seine familienfreundliche Atmosphäre und die Nähe zu wichtigen städtischen...
Das Haus
Kategorie
Einfamilienhaus
Baujahr
1997
Bezug
sofort
Energie & Heizung
Warum sehe ich diese Anzeige? – Du siehst diese Anzeige basierend auf Ihrer Navigation auf unserer Website und den Suchkriterien, die du verwendet hast.
Energieausweistyp
Bedarfsausweis
Gebäudetyp
Wohngebäude
Baujahr laut Energieausweis
1997
Wesentliche Energieträger
GAS
Gültigkeit
bis 23.09.2034
Effizienzklasse
D
Endenergiebedarf
114,70 kWh/(m²·a)
Weitere Energiedaten
Energieträger
Gas
Heizungsart
offener Kamin, Zentralheizung
Details
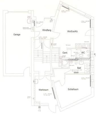
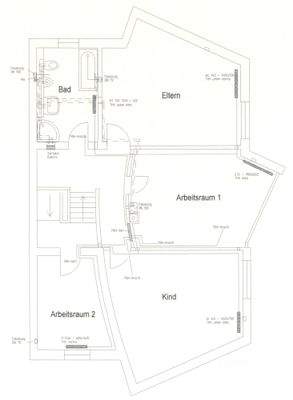
Objektbeschreibung
Dieses großzügige Einfamilienhaus mit Einliegerwohnung, bezugsfertig im Jahr 1997, bietet auf einer Wohnfläche von ca. 253 m² sowie einer Kellernutzfläche von ca. 60 m² den perfekten Raum für Familien und Paare, die großzügiges Wohnen bevorzugen. Das Anwesen erstreckt sich auf einem Grundstück von 733 m² und überzeugt durch...
Ausstattung
- Massivbauweise (Porotonziegel)
- Holzrahmenfenster mit Isolierverglasung
- Elektrische Rollläden mit Zeitschaltuhr
- Fußbodenheizung in fast allen Räumen
- Zwei Massivholz-Einbauküchen samt Elektrogeräten
- Specksteinofen im Wohn- und Esszimmer
- Bodenbeläge: 20 mm Stab-Parkett und Fliesen
- Zwei...
Preisinformation
4 Stellplätze
3 Garagenstellplätze
Weitere Informationen
Sonstiges
Die Informationen zur Immobilie und jegliche Objektunterlagen sind ohne Gewähr und basieren auf den Angaben des Eigentümers. Wir übernehmen keine Haftung für die Richtigkeit, Vollständigkeit und Aktualität der Daten.
Stichworte
Nutzfläche: 60,00 m², Gesamtfläche: 313,00 m², Anzahl der Schlafzimmer: 3...
Anbieter der Immobilie
Goll Immobilien | Jürgen Goll GmbH
Roermonder Straße 388a, 52134 Herzogenrath

Online-ID: 2m9j65a
Referenznummer: 2025-JG-83
Finde Angebote wie dieses
Hier geht es zu unserem Impressum, den Allgemeinen Geschäftsbedingungen, den Hinweisen zum Datenschutz und nutzungsbasierter Online-Werbung.