


1 / 22



1 / 22
Einfamilienhaus zum Kauf320000 €320.000 €2.581 €/m²6 Zimmer • 124 m² • 615 m² Grundstück • frei ab sofort
320000 €320.000 €
2.581 €/m²
6 Zimmer • 124 m² • 615 m² Grundstück • frei ab sofort
Viel Platz auf 4 Etagen! Großzügige Doppelhaushälfte in Vorwerk
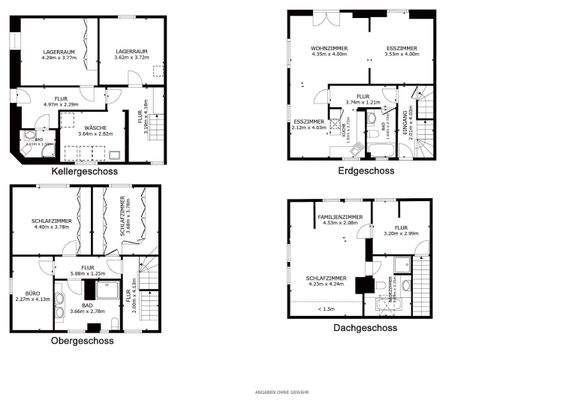
Diese helle und einladende Doppelhaushälfte aus dem Jahr 1955 besticht durch seine Großzügigkeit, liebevolle Gestaltung und das schöne, pflegeleichte Grundstück mit rund 615 m² Fläche. Auf insgesamt vier Etagen, davon zwei Vollgeschosse, bietet das Haus reichlich Platz, durchdachte Raumaufteilung und viele Möglichkeiten, den eigenen Wohntraum zu verwirklichen.
Beim Betreten des Hauses empfängt Sie im Erdgeschoss ein freundlicher Eingangsbereich, von dem aus Sie in alle Räumlichkeiten der Etage gelangen. Die geräumige Küche bietet genügend Platz zum Kochen und Verweilen.
Ein modernes Duschbad ist ebenfalls vorhanden.
Herzstück des Hauses ist der offen gestaltete Wohn- und Essbereich, der mit seiner Helligkeit und seinem großzügigen Schnitt sofort ein Gefühl von Zuhause vermittelt.
Von hier aus führt der direkte Zugang auf die großzügige Terrasse, die nahtlos in den liebevoll angelegten Garten übergeht - ein idealer Ort, um sonnige Tage und gesellige Abende zu genießen.
Im Obergeschoss befinden sich drei gut geschnittene Schlafzimmer, die vielseitig nutzbar sind - ob als Kinder-, Arbeits- oder Gästezimmer.
Ein großes, renoviertes Duschbad rundet diese Etage harmonisch ab.
Das Dachgeschoss überrascht mit seinem besonderen Charme: Sichtbare Holzbalken verleihen dem Raum eine warme, gemütliche Atmosphäre. Hier finden Sie eine kleine Küchenzeile, einen großzügigen Wohn-Schlafbereich sowie ein weiteres, ebenfalls renoviertes Dusch-und Wannenbad - ideal als Gästebereich, Rückzugsort oder Atelier.
Der Keller überzeugt durch seine Funktionalität: Neben einem geräumigen Waschraum stehen zwei große Kellerräume sowie ein weiteres Duschbad zur Verfügung. Auch hier sorgen Fenster für angenehmes Tageslicht - ein seltenes Plus.
Das Haus ist mit zweifach verglasten Fenstern, einer neuen Haustür, elektrischen Rollläden sowie einer Viessmann Gas-Heizung ausgestattet. Zudem wurde die gesamte Elektrik erneuert, was zusätzlichen Komfort und Sicherheit bietet.
Diese Ausstattungsdetails schaffen ein zeitgemäßes Wohngefühl und tragen zur Energieeffizienz des Hauses bei.
Das große Grundstück bietet eine große Einfahrt mit mehreren Stellplätzen und eine Garage. Im Garten befinden sich zudem zwei praktische Schuppen, die zusätzlichen Stauraum für Gartengeräte oder Freizeitaktivitäten bieten.
Die liebevoll angelegte Gartenfläche ist pflegeleicht gestaltet und lädt zum Entspannen ein.
Mit seiner großzügigen Raumaufteilung und den vielen Annehmlichkeiten eignet sich dieses Haus besonders für Paare oder Menschen im mittleren Alter, die Wert auf Platz, Komfort und eine angenehme Wohnatmosphäre legen.
Hier können Sie sofort einziehen und gleichzeitig Ihre eigenen Wohnideen verwirklichen - ein Haus mit Herz, Charakter und Zukunftspotenzial.
Vereinbaren Sie jetzt Ihren persönlichen Besichtigungstermin.
Wir freuen uns auf Ihre Anfrage!
______________________________________________________
Entdecken Sie Ihr neues Zuhause - ganz bequem von überall.
Erleben Sie die Immobilie in einem interaktiven 360°-Rundgang, als wären Sie bereits vor Ort.
So erhalten Sie Zugang:
Sobald Sie Ihre Kontaktdaten eingegeben und den Maklervertrag bestätigt haben, schalten wir den virtuellen Rundgang für Sie frei.
Hinweis:
Der Link zur 360°-Aufnahme erscheint direkt im Web-Exposé, sobald der Zugang freigeschaltet wurde.
______________________________________________________
Zur besseren Vorstellung der räumlichen Gegebenheiten wurden einige der abgebildeten Fotos mithilfe künstlicher Intelligenz digital entmöbliert.
Die Grundstruktur und Aufteilung der Räume entspricht den tatsächlichen Gegebenheiten.
Es wurden keine baulichen Veränderungen vorgenommen, lediglich die Einrichtung wurde virtuell entfernt.
Beim Betreten des Hauses empfängt Sie im Erdgeschoss ein freundlicher Eingangsbereich, von dem aus Sie in alle Räumlichkeiten der Etage gelangen. Die geräumige Küche bietet genügend Platz zum Kochen und Verweilen.
Ein modernes Duschbad ist ebenfalls vorhanden.
Herzstück des Hauses ist der offen gestaltete Wohn- und Essbereich, der mit seiner Helligkeit und seinem großzügigen Schnitt sofort ein Gefühl von Zuhause vermittelt.
Von hier aus führt der direkte Zugang auf die großzügige Terrasse, die nahtlos in den liebevoll angelegten Garten übergeht - ein idealer Ort, um sonnige Tage und gesellige Abende zu genießen.
Im Obergeschoss befinden sich drei gut geschnittene Schlafzimmer, die vielseitig nutzbar sind - ob als Kinder-, Arbeits- oder Gästezimmer.
Ein großes, renoviertes Duschbad rundet diese Etage harmonisch ab.
Das Dachgeschoss überrascht mit seinem besonderen Charme: Sichtbare Holzbalken verleihen dem Raum eine warme, gemütliche Atmosphäre. Hier finden Sie eine kleine Küchenzeile, einen großzügigen Wohn-Schlafbereich sowie ein weiteres, ebenfalls renoviertes Dusch-und Wannenbad - ideal als Gästebereich, Rückzugsort oder Atelier.
Der Keller überzeugt durch seine Funktionalität: Neben einem geräumigen Waschraum stehen zwei große Kellerräume sowie ein weiteres Duschbad zur Verfügung. Auch hier sorgen Fenster für angenehmes Tageslicht - ein seltenes Plus.
Das Haus ist mit zweifach verglasten Fenstern, einer neuen Haustür, elektrischen Rollläden sowie einer Viessmann Gas-Heizung ausgestattet. Zudem wurde die gesamte Elektrik erneuert, was zusätzlichen Komfort und Sicherheit bietet.
Diese Ausstattungsdetails schaffen ein zeitgemäßes Wohngefühl und tragen zur Energieeffizienz des Hauses bei.
Das große Grundstück bietet eine große Einfahrt mit mehreren Stellplätzen und eine Garage. Im Garten befinden sich zudem zwei praktische Schuppen, die zusätzlichen Stauraum für Gartengeräte oder Freizeitaktivitäten bieten.
Die liebevoll angelegte Gartenfläche ist pflegeleicht gestaltet und lädt zum Entspannen ein.
Mit seiner großzügigen Raumaufteilung und den vielen Annehmlichkeiten eignet sich dieses Haus besonders für Paare oder Menschen im mittleren Alter, die Wert auf Platz, Komfort und eine angenehme Wohnatmosphäre legen.
Hier können Sie sofort einziehen und gleichzeitig Ihre eigenen Wohnideen verwirklichen - ein Haus mit Herz, Charakter und Zukunftspotenzial.
Vereinbaren Sie jetzt Ihren persönlichen Besichtigungstermin.
Wir freuen uns auf Ihre Anfrage!
______________________________________________________
Entdecken Sie Ihr neues Zuhause - ganz bequem von überall.
Erleben Sie die Immobilie in einem interaktiven 360°-Rundgang, als wären Sie bereits vor Ort.
So erhalten Sie Zugang:
Sobald Sie Ihre Kontaktdaten eingegeben und den Maklervertrag bestätigt haben, schalten wir den virtuellen Rundgang für Sie frei.
Hinweis:
Der Link zur 360°-Aufnahme erscheint direkt im Web-Exposé, sobald der Zugang freigeschaltet wurde.
______________________________________________________
Zur besseren Vorstellung der räumlichen Gegebenheiten wurden einige der abgebildeten Fotos mithilfe künstlicher Intelligenz digital entmöbliert.
Die Grundstruktur und Aufteilung der Räume entspricht den tatsächlichen Gegebenheiten.
Es wurden keine baulichen Veränderungen vorgenommen, lediglich die Einrichtung wurde virtuell entfernt.
Merkmale
- frei ab sofort
- 615 m² Grundstück
- Keller
- 4 Stellplätze
- Gäste-WC
- Garten
- Terrasse
Grundrisse
Grundrisse
1 / 1
Realisiere Dein Projekt
Bausubstanz und Energie
Energieausweis
D
- Baujahr1955
- Zustand der ImmobilieMassivhaus, Gepflegt
- HeizungsartZentralheizung
- EnergieträgerGas
Preisdetails
Kaufpreis
320000 €320.000 €
2.580,65 €/m²
Provision für Käufer
3,57 % inkl. MwSt.
Die Käuferprovision in Höhe von 3,57% inkl. MwSt. vom beurkundeten Kaufpreis ist verdient und fällig bei Abschluss des notariellen Kaufvertrages. Weitere Informationen siehe Provisionshinweis.
Die Käuferprovision in Höhe von 3,57% inkl. MwSt. vom beurkundeten Kaufpreis ist verdient und fällig bei Abschluss des notariellen Kaufvertrages. Weitere Informationen siehe Provisionshinweis.
Geschätzte Gesamtkosten
353.824 €1
Kaufpreis
320.000 €
Kaufnebenkosten
33.824 €
2Notarkosten (1,5%)
4.800 €
Grunderwerbsteuer (5%)
16.000 €
Provision für Käufer (3,57%)
11.424 €
Grundbucheintrag (0,5%)
1.600 €
1Der angezeigte Wert ist eine automatisch berechnete Schätzung von immowelt.
2Bei den Angaben handelt es sich um ortsübliche Werte. Individuelle Kosten können abweichen.
Lage

Vorwerk, Celle (29229)
Der Anbieter hat die genaue Adresse nicht freigegeben
Celle, eine charmante Stadt mit einer reichen Geschichte und einer pittoresken Altstadt, bietet mit ihrem südlichen Tor zur Lüneburger Heide eine einzigartige Atmosphäre. Die Stadt, die für ihre über 400 Fachwerkhäuser und das Schloss im Stil der Renaissance und des Barocks bekannt ist, zählt 70.138 Einwohner und ist ein wichtiger Ort in Niedersachsen.
Das Einfamilienhaus, das wir Ihnen anbieten, liegt im Stadtteil Vorwerk, nur 3,7 km nordöstlich vom Stadtzentrum entfernt, und bietet somit ein städtisches Flair. Die Nähe zum Stadtzentrum und die gute Verkehrsanbindung, dank der Bushaltestelle Celle, Reuterweg, die nur 200 m entfernt ist.
Für den täglichen Bedarf stehen Ihnen zahlreiche Einkaufsmöglichkeiten in der Nähe zur Verfügung, darunter der Edeka-Markt Wilhelms, Netto Marken-Discount und Rewe. Für frische Brotwaren und Backprodukte können Sie die Bäckerei Kiess & Krause besuchen, während dm, Haarpflegeshop und Rossmann für Ihre Drogeriebedürfnisse sorgen. Für Heimwerker und Bauherren ist der Baumarkt OBI in der Nähe ein wichtiger Anlaufpunkt.
Familien mit Kindern werden die Nähe zu Bildungseinrichtungen wie der Grundschule, die fußläufig erreichbar ist, und einer weiteren Schule, die mit dem Fahrrad leicht zu erreichen ist, schätzen. Zwei Kindergärten in fußläufiger Entfernung bieten eine gute Betreuung für die Kleinsten.
Für die Gesundheit der Bewohner ist gesorgt, dank einer Allgemeinmedizin in der Nähe, einer Pädiatrie und eines Krankenhauses in der Umgebung. Drei Apotheken in der Nähe stehen für medizinische Bedürfnisse zur Verfügung.
Das kulinarische Angebot in der Umgebung ist vielfältig, mit Restaurants wie dem Restaurant Kalimera, dem Restaurant Iss gut - Erkan´s Grillhouse und dem Restaurant La Casa, die alle nur wenige Gehminuten entfernt sind. Für ein abendliches Vergnügen laden eine Kneipe und eine Bar in der Nähe ein.
Zum Ausgleich und für die Freizeit bietet die Umgebung ein Kino, eine Spielhalle und ein Museum. Sportbegeisterte finden ihre Herausforderung im Tennisverein Vorwerk, auf dem Sportplatz Vorwerk oder in der Celler Tennisvereinigung, allesamt leicht erreichbar. Das Fitnessstudio Fitness Planet bietet eine Vielzahl an Trainingsmöglichkeiten.
Für die Naherholung stehen Parks wie der Heilpflanzengarten Stadt Celle, der Thaers Garten und das Naturreservat Fledermaus-Höhle in der Nähe zur Verfügung, um die Natur und die Schönheit der Umgebung zu genießen.
Das Einfamilienhaus, das wir Ihnen anbieten, liegt im Stadtteil Vorwerk, nur 3,7 km nordöstlich vom Stadtzentrum entfernt, und bietet somit ein städtisches Flair. Die Nähe zum Stadtzentrum und die gute Verkehrsanbindung, dank der Bushaltestelle Celle, Reuterweg, die nur 200 m entfernt ist.
Für den täglichen Bedarf stehen Ihnen zahlreiche Einkaufsmöglichkeiten in der Nähe zur Verfügung, darunter der Edeka-Markt Wilhelms, Netto Marken-Discount und Rewe. Für frische Brotwaren und Backprodukte können Sie die Bäckerei Kiess & Krause besuchen, während dm, Haarpflegeshop und Rossmann für Ihre Drogeriebedürfnisse sorgen. Für Heimwerker und Bauherren ist der Baumarkt OBI in der Nähe ein wichtiger Anlaufpunkt.
Familien mit Kindern werden die Nähe zu Bildungseinrichtungen wie der Grundschule, die fußläufig erreichbar ist, und einer weiteren Schule, die mit dem Fahrrad leicht zu erreichen ist, schätzen. Zwei Kindergärten in fußläufiger Entfernung bieten eine gute Betreuung für die Kleinsten.
Für die Gesundheit der Bewohner ist gesorgt, dank einer Allgemeinmedizin in der Nähe, einer Pädiatrie und eines Krankenhauses in der Umgebung. Drei Apotheken in der Nähe stehen für medizinische Bedürfnisse zur Verfügung.
Das kulinarische Angebot in der Umgebung ist vielfältig, mit Restaurants wie dem Restaurant Kalimera, dem Restaurant Iss gut - Erkan´s Grillhouse und dem Restaurant La Casa, die alle nur wenige Gehminuten entfernt sind. Für ein abendliches Vergnügen laden eine Kneipe und eine Bar in der Nähe ein.
Zum Ausgleich und für die Freizeit bietet die Umgebung ein Kino, eine Spielhalle und ein Museum. Sportbegeisterte finden ihre Herausforderung im Tennisverein Vorwerk, auf dem Sportplatz Vorwerk oder in der Celler Tennisvereinigung, allesamt leicht erreichbar. Das Fitnessstudio Fitness Planet bietet eine Vielzahl an Trainingsmöglichkeiten.
Für die Naherholung stehen Parks wie der Heilpflanzengarten Stadt Celle, der Thaers Garten und das Naturreservat Fledermaus-Höhle in der Nähe zur Verfügung, um die Natur und die Schönheit der Umgebung zu genießen.
Weitere Informationen
Provisionshinweis
3,57 % inkl. MwSt.
Die Käuferprovision in Höhe von 3,57% inkl. MwSt. vom beurkundeten Kaufpreis ist verdient und fällig bei Abschluss des notariellen Kaufvertrages. Der Immobilienmakler hat einen provisionspflichtigen Maklervertrag in gleicher Höhe mit dem Verkäufer abgeschlossen (Maklervertrag nach §656c BGB). Sonstiges Käuferprovision:
Die Käuferprovision beträgt 3,57 % inkl. MwSt. des beurkundeten Kaufpreises und ist bei Abschluss des notariellen Kaufvertrages verdient und fällig. Der Immobilienmakler hat mit dem Verkäufer einen provisionspflichtigen Vertrag in gleicher Höhe gemäß § 656c BGB abgeschlossen.
Wichtige Informationen:
Bitte beachten Sie, dass nur Anfragen mit vollständigen Angaben wie Name, Adresse, E-Mail-Adresse und Telefonnummer bearbeitet werden können. Nach erfolgreicher Anmeldung erhalten Sie eine E-Mail mit einem Link zum Web-Exposé. Bitte bestätigen Sie dort den Maklervertrag. Anschließend stellen wir Ihnen die Adresse der Immobilie sowie das Exposé zum Download zur Verfügung. Überprüfen Sie bitte auch Ihren Spam-Ordner, falls Sie die E-Mail nicht in Ihrem Posteingang finden.
Unser Serviceversprechen:
Im Rahmen unserer Alleinaufträge widmen wir uns mit höchster Sorgfalt und neutraler Wahrung aller Interessen dem erfolgreichen Abschluss des Kaufvertrages. Trotz sorgfältiger Prüfung der uns vom Eigentümer zur Verfügung gestellten Informationen können wir keine Gewähr für deren Richtigkeit übernehmen. Dieses Angebot ist freibleibend und unverbindlich, und alle Angaben sollten vom Käufer eigenständig überprüft werden. Eine fachkundige Beratung auf eigene Kosten wird empfohlen.
Unser Anspruch - Vertrauen und Zuverlässigkeit für Ihre Immobilienbedürfnisse:
Wir sehen uns nicht nur als Dienstleister, sondern als verlässlicher Partner auf Ihrem Weg zur Traumimmobilie. Unser Ziel ist es, Ihnen den Kauf oder Verkauf so angenehm und reibungslos wie möglich zu gestalten. Ob Sie ein Baugrundstück suchen, ein Haus verkaufen oder in eine Kapitalanlage investieren möchten - wir bieten Ihnen eine umfassende und maßgeschneiderte Beratung, die auf Ihre individuellen Wünsche abgestimmt ist.
Als erfahrener Experte für private und gewerbliche Wohnimmobilien in Celle, Hannover und Umgebung stehe ich Ihnen kompetent zur Seite.
Kontakt: Heiko Griesbach - 05143 4224343
Zusatzservices für Sie - Alles aus einer Hand:
Damit Ihr Immobilienwechsel so reibungslos wie möglich verläuft, bieten wir Ihnen eine Vielzahl an zusätzlichen Dienstleistungen, die Sie in jeder Phase des Prozesses unterstützen. So können Sie sich ganz auf Ihr neues Zuhause konzentrieren, während wir den Rest für Sie erledigen.
# Finanzierungsvermittlung:
Der Erwerb einer Immobilie ist eine wichtige Entscheidung, die oft eine maßgeschneiderte Finanzierung erfordert. Wir unterstützen Sie dabei, die passende Finanzierungslösung zu finden, die optimal zu Ihren individuellen Bedürfnissen und Ihrer finanziellen Situation passt. Dabei arbeiten wir mit vertrauenswürdigen Banken und Finanzdienstleistern zusammen, um Ihnen die besten Konditionen zu sichern und den Finanzierungsprozess schnell und unkompliziert zu gestalten.
# Vermittlung von Fachfirmen:
Ein Umzug, eine Renovierung oder Sanierung kann mit vielen Herausforderungen verbunden sein. Damit Sie sich auf das Wesentliche konzentrieren können, vermitteln wir Ihnen erfahrene Handwerksbetriebe und Fachfirmen, die Sie bei Renovierungsarbeiten, Umbauten oder dem Umzug in Ihre neue Immobilie unterstützen. Wir sorgen dafür, dass Sie zuverlässige und qualifizierte Experten an Ihrer Seite haben, die Ihre Wünsche professionell umsetzen.
# Verkauf Ihrer alten Immobilie:
Der Verkauf Ihrer bisherigen Immobilie kann oft eine zeitaufwändige und stressige Aufgabe sein. Wir nehmen Ihnen diese Last ab, indem wir den gesamten Verkaufsprozess für Sie übernehmen. Vom Marktwertgutachten über die Verkaufsstrategie bis hin zur Verhandlung und dem Abschluss des Verkaufs - wir kümmern uns um alle Details. So können Sie sich ganz auf den Kauf und die Gestaltung Ihres neuen Zuhauses konzentrieren, ohne sich um den Verkauf Ihrer alten Immobilie sorgen zu müssen. Stichworte Garage vorhanden, Stellplatz vorhanden, Breitband Zugang mit 100 Mbit/Sec, Anzahl der Schlafzimmer: 4, Anzahl der Badezimmer: 4, Anzahl der separaten WCs: 1, Anzahl Terrassen: 1, Bundesland: Niedersachsen, 2 Etagen, modernisiert: 2024, nur Nichtraucher
Die Käuferprovision in Höhe von 3,57% inkl. MwSt. vom beurkundeten Kaufpreis ist verdient und fällig bei Abschluss des notariellen Kaufvertrages. Der Immobilienmakler hat einen provisionspflichtigen Maklervertrag in gleicher Höhe mit dem Verkäufer abgeschlossen (Maklervertrag nach §656c BGB). Sonstiges Käuferprovision:
Die Käuferprovision beträgt 3,57 % inkl. MwSt. des beurkundeten Kaufpreises und ist bei Abschluss des notariellen Kaufvertrages verdient und fällig. Der Immobilienmakler hat mit dem Verkäufer einen provisionspflichtigen Vertrag in gleicher Höhe gemäß § 656c BGB abgeschlossen.
Wichtige Informationen:
Bitte beachten Sie, dass nur Anfragen mit vollständigen Angaben wie Name, Adresse, E-Mail-Adresse und Telefonnummer bearbeitet werden können. Nach erfolgreicher Anmeldung erhalten Sie eine E-Mail mit einem Link zum Web-Exposé. Bitte bestätigen Sie dort den Maklervertrag. Anschließend stellen wir Ihnen die Adresse der Immobilie sowie das Exposé zum Download zur Verfügung. Überprüfen Sie bitte auch Ihren Spam-Ordner, falls Sie die E-Mail nicht in Ihrem Posteingang finden.
Unser Serviceversprechen:
Im Rahmen unserer Alleinaufträge widmen wir uns mit höchster Sorgfalt und neutraler Wahrung aller Interessen dem erfolgreichen Abschluss des Kaufvertrages. Trotz sorgfältiger Prüfung der uns vom Eigentümer zur Verfügung gestellten Informationen können wir keine Gewähr für deren Richtigkeit übernehmen. Dieses Angebot ist freibleibend und unverbindlich, und alle Angaben sollten vom Käufer eigenständig überprüft werden. Eine fachkundige Beratung auf eigene Kosten wird empfohlen.
Unser Anspruch - Vertrauen und Zuverlässigkeit für Ihre Immobilienbedürfnisse:
Wir sehen uns nicht nur als Dienstleister, sondern als verlässlicher Partner auf Ihrem Weg zur Traumimmobilie. Unser Ziel ist es, Ihnen den Kauf oder Verkauf so angenehm und reibungslos wie möglich zu gestalten. Ob Sie ein Baugrundstück suchen, ein Haus verkaufen oder in eine Kapitalanlage investieren möchten - wir bieten Ihnen eine umfassende und maßgeschneiderte Beratung, die auf Ihre individuellen Wünsche abgestimmt ist.
Als erfahrener Experte für private und gewerbliche Wohnimmobilien in Celle, Hannover und Umgebung stehe ich Ihnen kompetent zur Seite.
Kontakt: Heiko Griesbach - 05143 4224343
Zusatzservices für Sie - Alles aus einer Hand:
Damit Ihr Immobilienwechsel so reibungslos wie möglich verläuft, bieten wir Ihnen eine Vielzahl an zusätzlichen Dienstleistungen, die Sie in jeder Phase des Prozesses unterstützen. So können Sie sich ganz auf Ihr neues Zuhause konzentrieren, während wir den Rest für Sie erledigen.
# Finanzierungsvermittlung:
Der Erwerb einer Immobilie ist eine wichtige Entscheidung, die oft eine maßgeschneiderte Finanzierung erfordert. Wir unterstützen Sie dabei, die passende Finanzierungslösung zu finden, die optimal zu Ihren individuellen Bedürfnissen und Ihrer finanziellen Situation passt. Dabei arbeiten wir mit vertrauenswürdigen Banken und Finanzdienstleistern zusammen, um Ihnen die besten Konditionen zu sichern und den Finanzierungsprozess schnell und unkompliziert zu gestalten.
# Vermittlung von Fachfirmen:
Ein Umzug, eine Renovierung oder Sanierung kann mit vielen Herausforderungen verbunden sein. Damit Sie sich auf das Wesentliche konzentrieren können, vermitteln wir Ihnen erfahrene Handwerksbetriebe und Fachfirmen, die Sie bei Renovierungsarbeiten, Umbauten oder dem Umzug in Ihre neue Immobilie unterstützen. Wir sorgen dafür, dass Sie zuverlässige und qualifizierte Experten an Ihrer Seite haben, die Ihre Wünsche professionell umsetzen.
# Verkauf Ihrer alten Immobilie:
Der Verkauf Ihrer bisherigen Immobilie kann oft eine zeitaufwändige und stressige Aufgabe sein. Wir nehmen Ihnen diese Last ab, indem wir den gesamten Verkaufsprozess für Sie übernehmen. Vom Marktwertgutachten über die Verkaufsstrategie bis hin zur Verhandlung und dem Abschluss des Verkaufs - wir kümmern uns um alle Details. So können Sie sich ganz auf den Kauf und die Gestaltung Ihres neuen Zuhauses konzentrieren, ohne sich um den Verkauf Ihrer alten Immobilie sorgen zu müssen. Stichworte Garage vorhanden, Stellplatz vorhanden, Breitband Zugang mit 100 Mbit/Sec, Anzahl der Schlafzimmer: 4, Anzahl der Badezimmer: 4, Anzahl der separaten WCs: 1, Anzahl Terrassen: 1, Bundesland: Niedersachsen, 2 Etagen, modernisiert: 2024, nur Nichtraucher
Weitere Services
Lust auf eine Besichtigung?
Eine Frage zur Immobilie?
Über den Anbieter
1wirdDeins GmbH & Co. KGMaklerbüro
Celler Str. 5, 29308 Winsen
Partnerschaft

Herr Heiko GriesbachDein Kontakt
Online-ID: 2m9lb5y
Referenznummer: 0678


1wirdDeins GmbH & Co. KG
5/5Bewertung: 5 von 5 Sternen
Wie zufrieden bist du mit dieser Seite (nicht mit der Immobilie selbst)?