
BREINLINGERs GmbH
Herr Luca Li Vecchi
074 ···
Nr. anzeigenPreise & Kosten
Provision für Käufer
3,0 % des Kaufpreises zzgl. MwSt
Lage
Neuhausen ob Eck im Landkreis Tuttlingen beeindruckt mit einer
ausgezeichneten Anbindung an umliegende Städte wie Tuttlingen und
Meßkirch, insbesondere durch die Bundesstraße B311. Diese Verbindung
harmonisiert das charmante Landleben mit einer erstklassigen Erreichbarkeit –
eine Mischung, die gleichermaßen für...
Das Haus
Baujahr
1972
Derzeitige Nutzung
frei
Energie & Heizung
Warum sehe ich diese Anzeige? – Du siehst diese Anzeige basierend auf Ihrer Navigation auf unserer Website und den Suchkriterien, die du verwendet hast.
Weitere Energiedaten
Energieträger
Holz, Öl
Heizungsart
Zentralheizung
Details
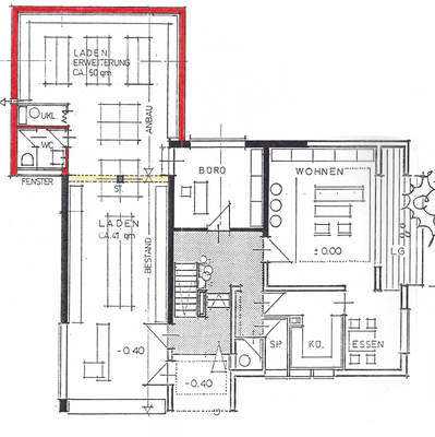
Objektbeschreibung
Wir freuen uns, Ihnen dieses Wohn- und Geschäftshaus anbieten zu können.
Die hier angebotene Immobilie befindet sich auf einem 780 m² großen Grundstück und wurde 1972 in massiver Bauweise errichtet. Sie bietet eine perfekte Kombination aus Wohn- und Gewerbefläche, ideal für Selbstständige oder...
Anbieter der Immobilie
BREINLINGERs GmbH
Neuhauser Str. 115, 78532 Tuttlingen
Online-ID: 2m9me5c
Finde Angebote wie dieses
Hier geht es zu unserem Impressum, den Allgemeinen Geschäftsbedingungen, den Hinweisen zum Datenschutz und nutzungsbasierter Online-Werbung.