

Rustler Immobilientreuhand GmbH
Frau Ulrike Rösch
+43 ···
Nr. anzeigenPreise & Kosten
Provision für Käufer
Bitte beachte, das Angebot beinhaltet bei Vertragsabschluss die Zahlung einer Provision. Weitere Informationen erhältst Du vom Anbieter.
Die Wohnung
Wohnungslage
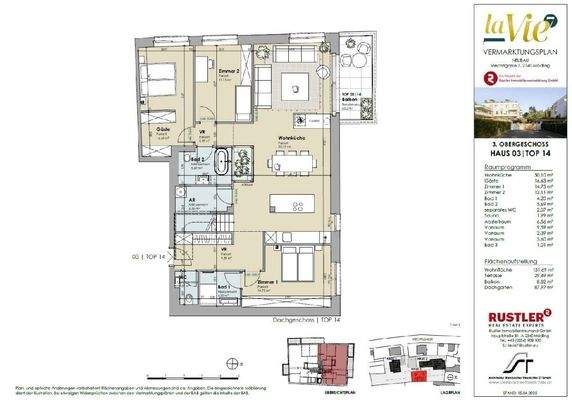
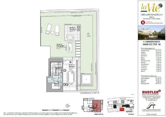
Dachgeschoss
Bezug
nach Kaufvertrag
Wohnanlage
Energie & Heizung
Warum sehe ich diese Anzeige? – Du siehst diese Anzeige basierend auf Ihrer Navigation auf unserer Website und den Suchkriterien, die du verwendet hast.
Heizwärmebedarf (HWB)
25,10 kWh/(m²·a)
Gesamtenergieeffizienz (fGEE)
0,72
Weitere Energiedaten
Heizungsart
Zentralheizung
Details
Objektbeschreibung
Inmitten der charmanten Stadt Mödling, nur wenige Minuten von Wien entfernt und eingebettet in die grüne Umgebung des Wienerwalds, erwartet Sie eine außergewöhnliche Eigentumswohnung, die modernes Design, großzügige Raumplanung und naturnahe Lebensqualität vereint.
Mit einer beeindruckenden Wohnfläche von 131,69 m²...
Preisinformation
2 Garagenstellplätze
Weitere Informationen
Stichworte
Anzahl der Badezimmer: 3, Anzahl der separaten WCs: 2, Anzahl Balkone: 1, Anzahl Terrassen: 1, Balkon-Terrassen-Fläche: 125,87 m²
Anbieter der Immobilie

Online-ID: 2m9mw5q
Referenznummer: 141/83416
Finde Angebote wie dieses
Günstige Immobilienfinanzierung einfach online berechnen
Persönliches Angebot berechnenWarum sehe ich diese Werbung? – Du siehst diese Werbung basierend auf Deiner Navigation auf unserer Website und der von Dir verwendeten Suchkriterien.
Diese Werbung wird bezahlt von durchblicker
Werbung melden
Hier geht es zu unserem Impressum, den Allgemeinen Geschäftsbedingungen, den Hinweisen zum Datenschutz und nutzungsbasierter Online-Werbung.